Az értékesítő:
Némethné Tausz Beatrix
+36 30 426 1725

Eladó ipari ingatlan Hajdúböszörmény, 199 000 000 Ft, 709 négyzetméter

199 000 000 Ft
ipari ingatlan, 709 négyzetméter
Ingatlan állapota:
Átlagos
Azonosító:
11609788
Értékesítés típusa:
eladó
Ingatlan típusa:
ipari ingatlan
Jelleg:
Egyéb
Település:
Hajdúböszörmény
Alapterület:
709
Ár:
199 000 000 Ft
Telekterület típusa:
Négyzetméter
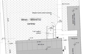
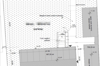
Hajdúviden 5602 nm-s telken, 709 nm-s iroda és műhely épülettel eladó! A területre építhető még egy tervekkel és engedélyekkel rendelkező 956 nm hasznos alapterületű csarnok. Az építéshez szükséges acélszerkezet váza a területen található, alapozás után felállítható. A területen minden közmű megtalálható. A jelenlegi épületek fűtése fatüzelésű kazánnal megoldott! A terület egyéb ipari gazdasági övezet, 30 % beépíthetőséggel, az új csarnok megépítésével maximálisan ki van használva. Ha bármi további kérdése van vagy szeretné megtekinteni, kérem hívjon!
https://ingatlanok.hu/elado/ipari_ingatlan/hajduboszormeny/199-millio-ft;709-negyzetmeter;egyeb-jellegu;nincs-megadva-tulajdonviszony/11609788