Az értékesítő:
Horváth Péter
+36 70 606 2990

Eladó családi ház Kóka, 58 990 000 Ft, 101 négyzetméter

58 990 000 Ft
családi ház, 101 négyzetméter
Építőanyag:
Tégla
Egész szobák:
4
Komfort fokozat:
Összkomfort
Fűtés módja:
Hőszivattyú
Ingatlan állapota:
Kitűnő
Azonosító:
11609981
Értékesítés típusa:
eladó
Ingatlan típusa:
családi ház
Jelleg:
Ikerház
Település:
Kóka
Alapterület:
101
Telekterület:
934
Ár:
58 990 000 Ft
Szintek száma:
Földszintes
Fűtés jellege:
Geotermikus
Kor:
Új építésű
Terasz:
Van
Pince:
Nincs
Telekterület típusa:
négyzetméter
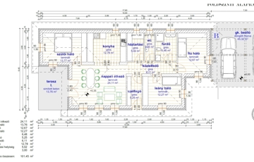
Kókán a József Attila utca 31. szám alatt, 1406 m2-es telkeken, újonnan épülő nettó 101,45 m2 nettó hasznos lakótérrel rendelkező, kulcsrakész ikerházfelek eladóak Az ingatlanok csak a fedett gépkocsibeállóval érintkeznek. Az utcafronti ház kizárólagos használatú telekrésze 472 m2. A hátsó háznak 934 m2-es a kizárólagos használatú telekrésze. Az ingatlanok 30-as Nútféderes téglából épülnek, fa födémmel. A tető héjazata betoncserép lesz, a homlokzatok 15cm EPS, a padló 10cm lépésálló, a födém 30cm ásványgyapot szigeteléssel lesz ellátva. A külső nyílászárók 6 légkamrás háromrétegű üveggel szerelt műanyag thermók lesznek. A fűtést hőszivattyús rendszer fogja ellátni, padlófűtéssel. Műszaki tartalom: -Csempe, járólap 3000 ft/m² -Meleg burkolat 3000 Ft/m² -Fürdőkád: 40.000.- Ft -Beltéri ajtók 32.000.- Ft. /db -Csaptelepek: 15.000.- Ft. /db Magasabb árú választás is lehetséges a különbség finanszírozásával. Elektromos kiépítés: -Konnektorok szobákban: 3 db -Konnektorok nappaliban 4db + internet és kábeltv kiállás -Konnektorok konyhában: 6db -Világítás helyiségenként 1-1 db -Kábeltévé: Előkészítés -Kapumozgató elektronika: előkészítés -Riasztó: előkészítés Az utcafronti kerítés színezett zsalukővel, fa lécezéssel készül. A kivitelező korábban épített ingatlanjait komoly érdeklődés esetén szívesen megmutatjuk referenciaként. INGYENES hitel tanácsadás, Otthon Start, CSOK Plusz ügyintézés! BANKFÜGGETLEN hitelcentrumunk az összes elérhető bank és hitelintézet ajánlatát versenyezteti az Ön kedvéért, ráadásul DÍJMENTESEN. - Egyedi, bankfiókban nem elérhető kamat- és díjkedvezmények - Hitelképesség vizsgálat - Idő, energia és pénz megtakarítás - Teljes hivatali ügyintézés Amennyiben hirdetésem felkeltette az érdeklődését vagy egyéb információra van szüksége hívjon bizalommal!
https://ingatlanok.hu/elado/haz/koka/59-millio-ft;101-negyzetmeter;4-szoba;geotermikus-futes/11609981