Az értékesítő:
Ondrejovics Zsuzsanna
+36 30 789 9533

Eladó családi ház Budapest XVII. ker, 118 900 000 Ft, 89 négyzetméter

118 900 000 Ft
családi ház, 89 négyzetméter
Építőanyag:
Tégla
Egész szobák:
3
Komfort fokozat:
Összkomfort
Fűtés módja:
Gáz
Ingatlan állapota:
Azonosító:
11610142
Értékesítés típusa:
eladó
Ingatlan típusa:
családi ház
Jelleg:
Családi ház
Település:
Budapest XVII. ker
Alapterület:
89
Telekterület:
880
Ár:
118 900 000 Ft
Szintek száma:
Földszintes
Fűtés jellege:
Cirkó
Kor:
21-50 éves
Terasz:
Van
Pince:
Nincs
Telekterület típusa:
négyzetméter
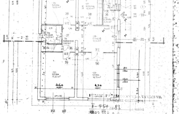
Kivételes lehetőség, csak irodánk kínálatában! Kiváló adottságú, nagy telekkel rendelkező, 3 szobás, önálló családi házat kínálunk megvételre! Eladó egy remek lehetőség a Kévekötő utcában, a dinamikusan fejlődő XVII. kerületben, Rákoskeresztúron! Kiváló elhelyezkedés, nagy terek, sok lehetőség – tökéletes választás több gyermekes családoknak is! ✔ Tágas, nettó 89 nm hasznos alapterületű ház ✔ 3 teljes értékű, külön nyíló szoba ✔ Nagy konyha, különálló étkezővel ✔ Ablakos kamra ✔ Háztartási helyiség / mosókonyha ✔ Kádas fürdőszoba+wc és külön wc ✔ Beépített 11 nm terasz ✔ Téglaépítésű, szigetelt, betonfödémes ház ✔ Beépíthető tetőtér ✔ Saját garázs és tároló különálló épületben (31 nm) * 89 nm alapterület + 11 nm terasz + 31 nm garázs és tároló * Előszoba 2,5 nm *Folyosó 3,5 nm * Kamra 2,5 nm * Fürdőszoba + wc 4,5 nm *Mosókonyha 2,5 nm * Wc 1,5 nm * Konyha 12 nm * Szoba 19 nm * Szoba 17 nm * Szoba 12 nm * Étkező 12 nm * Belmagasság 2,8 m Az ingatlan birtokbaadása csak 4-6 hónap múlva lesz esedékes! Ne hagyja ki ezt a nagy potenciállal rendelkező ingatlant! Hívjon és nézze meg mielőbb! BANKFÜGGETLEN hitelcentrumunk minden elérhető bank és hitelintézet ajánlatát versenyezteti az Ön kedvéért, ráadásul DÍJMENTESEN. A legjobb ajánlatokból végül Ön választhatja ki a nyertest. Munkatársaink sokéves szakmai tapasztalattal várják Önt, előre egyeztetve akár a normál munkaidő után is. O.ZS.
https://ingatlanok.hu/elado/haz/budapest-xvii-ker/119-millio-ft;89-negyzetmeter;3-szoba;cirko-futes/11610142