Az értékesítő:
Horváth Péter
+36 70 606 2990

Eladó családi ház Pécel, 99 000 000 Ft, 100 négyzetméter

99 000 000 Ft
családi ház, 100 négyzetméter
Építőanyag:
Tégla
Egész szobák:
4
Komfort fokozat:
Összkomfort
Fűtés módja:
Hőszivattyú
Ingatlan állapota:
Kitűnő
Azonosító:
11610260
Értékesítés típusa:
eladó
Ingatlan típusa:
családi ház
Jelleg:
Ikerház
Település:
Pécel
Alapterület:
100
Telekterület:
504
Ár:
99 000 000 Ft
Szintek száma:
Földszintes
Fűtés jellege:
Geotermikus
Kor:
Új építésű
Terasz:
Van
Pince:
Nincs
Telekterület típusa:
négyzetméter
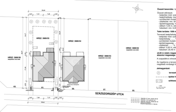
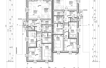
Pécelen a Százszorszép utca 61. szám alatt 1009m2-es telkeken, újonnan épülő nettó 99,66 m2 hasznos lakótérrel rendelkező, kulcsrakész ikerházfelek eladóak! A bal oldali ikerfél elkelt! Az ingatlanok 30-as Nútféderes tégla falazóelemből épülnek, fa födémmel. A tető héjazata antracit síkcserép lesz, a homlokzatok 15cm EPS, a padló 10cm lépésálló, a födém 25cm ásványgyapot szigeteléssel lesz ellátva. A külső nyílászárók 6 légkamrás háromrétegű üveggel szerelt műanyag thermók lesznek. A fűtést monoblockos hőszivattyús rendszer fogja ellátni, padlófűtéssel. A teraszok alatt tároló kerül kialakításra. Klíma előkészítés is készül. Műszaki tartalom: -Csempe, járólap 5000 ft/m² -Meleg burkolat 5000 Ft/m² -Fürdőkád vagy Zuhanyzó: 60.000.- Ft -Beltéri ajtók br. 50.000.- Ft. /db -Csaptelepek: 15.000.- Ft. /db Magasabb árú választás is lehetséges a különbség finanszírozásával. Elektromos kiépítés: -60db szerelvény /konnektor, kapcsoló, tv, internet/ -Kábeltévé: Előkészítés -Kapumozgató elektronika: előkészítés -Riasztó: előkészítés Az utcafronti kerítés színezett zsalukővel, fa lécezéssel készül. Tervezett átadás 2026 második negyedév. Érdeklődő ügyfeleinknek a tervdokumetációt és a műszaki tartalmat készséggel rendelkezésre bocsájtjuk. A kivitelező korábban számos ingatlant épített Isaszegen, Sülysápon, Dányban. Komoly érdeklődés esetén szívesen mutatunk referenciát! INGYENES hitel tanácsadás, CSOK Plusz és Otthon Start ügyintézés! BANKFÜGGETLEN hitelcentrumunk az összes elérhető bank és hitelintézet ajánlatát versenyezteti az Ön kedvéért, ráadásul DÍJMENTESEN. - Egyedi, bankfiókban nem elérhető kamat- és díjkedvezmények - Hitelképesség vizsgálat - Idő, energia és pénz megtakarítás - Teljes hivatali ügyintézés Amennyiben hirdetésem felkeltette az érdeklődését vagy egyéb információra van szüksége hívjon bizalommal!
https://ingatlanok.hu/elado/haz/pecel/99-millio-ft;100-negyzetmeter;4-szoba;geotermikus-futes/11610260