Az értékesítő:
Horváth Péter
+36 70 606 2990

Eladó családi ház Kóka, 59 990 000 Ft, 92 négyzetméter

59 990 000 Ft
családi ház, 92 négyzetméter
Építőanyag:
Tégla
Egész szobák:
4
Komfort fokozat:
Összkomfort
Fűtés módja:
Hőszivattyú
Ingatlan állapota:
Kitűnő
Azonosító:
11610288
Értékesítés típusa:
eladó
Ingatlan típusa:
családi ház
Jelleg:
Ikerház
Település:
Kóka
Alapterület:
92
Telekterület:
994
Ár:
59 990 000 Ft
Szintek száma:
Földszintes
Fűtés jellege:
Geotermikus
Kor:
Új építésű
Terasz:
Van
Pince:
Nincs
Telekterület típusa:
négyzetméter
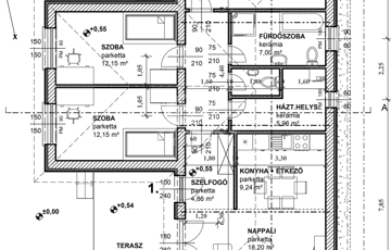
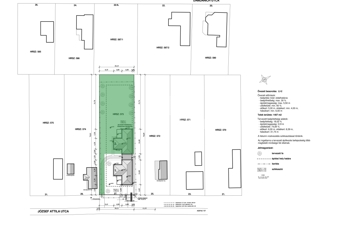
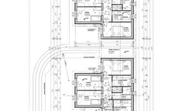
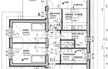
Kókán a József Attila utca 27. szám alatt, 1407 m2-es telkeken, újonnan épülő nettó 92,3 m2 nettó hasznos lakótérrel rendelkező, kulcsrakész ikerházfelek eladóak A fedett gépkocsibeálló az utcafronti házhoz tartozik, melynek kizárólagos használatú telekrésze 413 m2. A hátsó háznak 994 m2-es a kizárólagos használatú telekrésze. Az ingatlanok 30-as Nútféderes téglából épülnek, fa födémmel. A tető héjazata antracit betoncserép lesz, a homlokzatok 10cm Grafitos, a padló 10cm lépésálló, a födém 25cm ásványgyapot szigeteléssel lesz ellátva. A külső nyílászárók 6 légkamrás háromrétegű üveggel szerelt műanyag thermók lesznek. A fűtést hőszivattyús rendszer fogja ellátni, padlófűtéssel. Műszaki tartalom: -Csempe, járólap 3000 ft/m² -Meleg burkolat 3000 Ft/m² -Fürdőkád: 40.000.- Ft -Beltéri ajtók 32.000.- Ft. /db -Csaptelepek: 15.000.- Ft. /db Magasabb árú választás is lehetséges a különbség finanszírozásával. Elektromos kiépítés: -Konnektorok szobákban: 3 db -Konnektorok nappaliban 4db + internet és kábeltv kiállás -Konnektorok konyhában: 6db -Világítás helyiségenként 1-1 db -Kábeltévé: Előkészítés -Kapumozgató elektronika: előkészítés -Riasztó: előkészítés Az utcafronti kerítés színezett zsalukővel, fa lécezéssel készül. INGYENES hitel tanácsadás, CSOK Plusz ügyintézés! BANKFÜGGETLEN hitelcentrumunk az összes elérhető bank és hitelintézet ajánlatát versenyezteti az Ön kedvéért, ráadásul DÍJMENTESEN. - Egyedi, bankfiókban nem elérhető kamat- és díjkedvezmények - Hitelképesség vizsgálat - Idő, energia és pénz megtakarítás - Teljes hivatali ügyintézés Amennyiben hirdetésem felkeltette az érdeklődését vagy egyéb információra van szüksége hívjon bizalommal!
https://ingatlanok.hu/elado/haz/koka/60-millio-ft;92-negyzetmeter;4-szoba;geotermikus-futes/11610288