Az értékesítő:
Horváth Péter
+36 70 606 2990

Eladó családi ház Gödöllő, 115 000 000 Ft, 169 négyzetméter

115 000 000 Ft
családi ház, 169 négyzetméter
Építőanyag:
Tégla
Egész szobák:
4
Komfort fokozat:
Összkomfort
Fűtés módja:
Gáz
Ingatlan állapota:
Felújított
Azonosító:
11610294
Értékesítés típusa:
eladó
Ingatlan típusa:
családi ház
Jelleg:
Családi ház
Település:
Gödöllő
Alapterület:
169
Telekterület:
548
Ár:
115 000 000 Ft
Szintek száma:
Földszintes
Fűtés jellege:
Cirkó
Kor:
21-50 éves
Terasz:
Van
Pince:
Van
Telekterület típusa:
négyzetméter
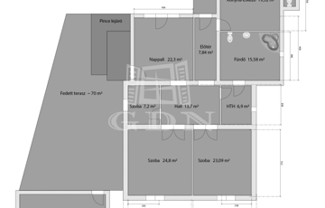
Gödöllőn 548 m2-es telken a Szilágyi Erzsébet utca és a Hunyadi János utca között, két utcafronttal, nettó 168,72m2-es + 34,3m2-es kétautós garázzsal, 13,5m2-es pincével és 70 m2-es fedett terasszal rendelkező családi ház eladó! A 2004-ben épült és folyamatosan modernizált ingatlanban a Hunyadi János utca felőli utcafronti bejárattal egy 35 m2-es üzlethelyiség található. A homlokzati falak 30-as és 38-as tégla falazattal épültek, melyeket 10cm-es EPS dryvit szigeteléssel láttak el. A külső nyílászárók műanyag thermó üvegekkel szereltek. A tetőt zsindely fedi. A fűtésről kombi gázkazán gondoskodik. A parkosított kertet öntözőrendszer locsolja helyettünk. A megközelítőleg 70m2-es fedett terasz kiválló helyszíne a családi összejöveteleknek és a pihenésnek. Az itt található jacuzzi is a vételár részét képezi. Parkolni a Sziláégyi Erzsébet utcáról elektromos garázsajtón megközelíthető 2 autó tárolására kialakított garázsban tudunk. A villamos áram terhelhetőseége 1x32A. Az üzlethelyiség gipszakrtonnal lett elválasztva, hogy akár 2 üzletet is üzemeltethessünk. A könnyedén elbontható válaszfallal 35m2-es helyiséget tudunk kialakítani. Tárolásra a nappali alatt kialakított 13,5m2-es pince kiváló lehetőséget ad. Készpénzes vevők jelentkezését várjuk. Amennyiben hirdetésem felkeltette az érdeklődését vagy egyéb információra van szüksége hívjon bizalommal!
https://ingatlanok.hu/elado/haz/godollo/115-millio-ft;169-negyzetmeter;4-szoba;cirko-futes/11610294