Az értékesítő:
Horváth Péter
+36 70 606 2990

Eladó családi ház Veresegyház, 84 990 000 Ft, 95 négyzetméter

84 990 000 Ft
családi ház, 95 négyzetméter
Építőanyag:
Tégla
Egész szobák:
4
Komfort fokozat:
Összkomfort
Fűtés módja:
Hőszivattyú
Ingatlan állapota:
Kitűnő
Azonosító:
11610372
Értékesítés típusa:
eladó
Ingatlan típusa:
családi ház
Jelleg:
Családi ház
Település:
Veresegyház
Alapterület:
95
Telekterület:
969
Ár:
84 990 000 Ft
Szintek száma:
Földszintes
Fűtés jellege:
Geotermikus
Kor:
Új építésű
Terasz:
Van
Pince:
Nincs
Telekterület típusa:
négyzetméter
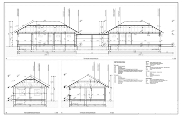
Veresegyházon a Ráday utca 31. szám alatt, 969 m²-es telken, nettó 93,2 m²-es és 94,55 m²-es három szoba + amerikai konyhás nappalival rendelkező, energiahatékony ikerházfelek eladók, megbízható számos referenciával rendelkező kivitelezőtől! Az utcafronti ingatlan 347 m²-es telekrésszel 84.990.000 Ft. A hátsó ingatlan 622 m²-es telekrésszel 94.990.000. Ft. Az ingatlanok csak a fedett kocsibeállókkal érintkeznek. A tartószerkezeti falak Porotherm P30N+F téglából, betonkoszorúval, fa födémes tetőszerkezettel készülnek. A lábazat 10 cm polisztirol lépésálló, a homlokzatok 15cm-es EPS, a vízszintes födém 30 cm ásványgyapot szigeteléssel lesz ellátva. Három rétegű üvegekkel szerelt, hat légkamrás műanyag thermo nyílászárók kerülnek beépítésre, elektromos alúmínium redőnyökkel és szúnyoghálóval. A minimális energiaigényt a megfelelő szigetelésen kívül a megújuló energiát használó gépészet is biztosítja. A fűtést és a használati melegvíz ellátását split rendszerű levegő-víz hőszivattyús rendszer fogja végezni. A hűtésről fan-coil fog gondoskodni. Burkolatok , szaniterek, belső ajtók, csaptelepek választhatóak a következő értékhatárig: -Hidegburkolat: 8000 Ft.-/m2 -Melegburkolat: 6.000 Ft.-/m2 -Beltéri ajtók: 80.000.Ft.-/db -Fürdőkád: 40.000.- Ft.- -Csaptelepek: 15000.- Ft.-/db Magasabb árú választás is lehetséges, a különbség finanszírozásával. A kivitelező korábban számos ingatlant épített Isaszegen és Veresegyházon, a már birtokbaadott ingatlanokat komoly érdeklődés esetén szívesen megmutatjuk referenciaként. Csok plusz, Otthon Start igényelhető! Tervezett átadás 2026 harmadik negyedéve Érdeklődő ügyfeleinknek a tervdokumetációt és a műszaki tartalmat készséggel rendelkezésre bocsájtjuk. INGYENES hitel tanácsadás, CSOK Plusz ügyintézés! BANKFÜGGETLEN hitelcentrumunk az összes elérhető bank és hitelintézet ajánlatát versenyezteti az Ön kedvéért, ráadásul DÍJMENTESEN. - Egyedi, bankfiókban nem elérhető kamat- és díjkedvezmények - Hitelképesség vizsgálat - Idő, energia és pénz megtakarítás - Teljes hivatali ügyintézés Amennyiben hirdetésem felkeltette az érdeklődését vagy egyéb információra van szüksége hívjon bizalommal!
https://ingatlanok.hu/elado/haz/veresegyhaz/85-millio-ft;95-negyzetmeter;4-szoba;geotermikus-futes/11610372