Az értékesítő:
Egri Attila
+36 30 442 1415

Eladó lakás Budapest III. ker, 99 900 000 Ft, 75 négyzetméter

99 900 000 Ft
lakás, 75 négyzetméter
Építőanyag:
Panel
Egész szobák:
3
Komfort fokozat:
Összkomfort
Ingatlan állapota:
Azonosító:
11610407
Értékesítés típusa:
eladó
Ingatlan típusa:
lakás
Település:
Budapest III. ker
Alapterület:
75
Ár:
99 900 000 Ft
Tulajdonviszony:
Saját
Emelet:
4. emelet
Fűtés jellege:
Távfűtés
Kilátás:
panorámás
Építési év:
21-50 éves
Erkély:
Van
Pince:
Nincs
Tároló:
Van
Lift:
Nincs
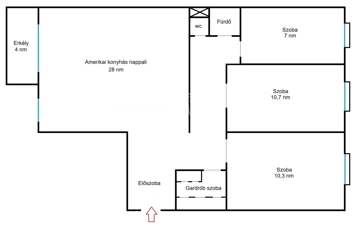
NAPFÉNYES, PANORÁMÁS, FELÚJÍTOTT, 4 SZOBÁS LAKÁS!! III. Kerület kedvelt részén, (Óbuda Filatorigát) parkosított zöld övezetben, kitűnő közlekedés és ellátottság mellett, 1990-ben épült, példás anyagi helyzetű és lakóközösségű, 4 szintes, 10 lakásos utolsó generációs panel épületben, kiváló adottságú, PANORÁMÁS KILÁTÁSÚ, 4. emeleti, 75 nm-es, 3 +1 fél szobás, (külön nyíló), GARDRÓB SZOBÁS, erkélyes, ablakos, amerikai konyhás, napos világos D-NY-i és É-K-i fekvésű, alacsony fenntartású, minden közmű egyedileg mérhető, jó állapotú, CSENDES, PARKRA NÉZŐ, az elmúlt 10 évben teljes körű felújításon átesett tehermentes, rugalmasan költözhető lakás, beépített gépesített konyhával, kulturált lakóközösségű társasházban eladó! A parkolás közvetlenül a ház előtt megoldott. A környék abszolút biztonságos, infrastruktúrája és közlekedése kitűnően ellátott! A belváros (Batthyány tér) kényelmes közlekedéssel H5 HÉV-vel 15 perc alatt elérhető. A közelben található buszmegállók: 9, 111, 118, 918. Karnyújtásnyira: iskola, óvoda, játszóterek, orvosi rendelő, boltok, sportolási, és szórakozási lehetőségek. Aldi, Lidl 200 méteren belül. Érdemes megnézni. További részletekért várom megtisztelő hívását. (hétvégén is) EA
https://ingatlanok.hu/elado/lakas/budapest-iii-ker/100-millio-ft;75-negyzetmeter;4-szoba;panel-epitesu/11610407