Az értékesítő:
Juhász Judit
+36 70 883 0574

Eladó családi ház Bocfölde, 139 000 000 Ft, 274 négyzetméter

139 000 000 Ft
családi ház, 274 négyzetméter
Építőanyag:
Tégla
Egész szobák:
4
Komfort fokozat:
Összkomfort
Fűtés módja:
Hőszivattyú
Ingatlan állapota:
Kitűnő
Azonosító:
11610738
Értékesítés típusa:
eladó
Ingatlan típusa:
családi ház
Jelleg:
Családi ház
Település:
Bocfölde
Alapterület:
274
Telekterület:
1011
Ár:
139 000 000 Ft
Szintek száma:
1 szint
Fűtés jellege:
Geotermikus
Kor:
Új építésű
Terasz:
Van
Pince:
Nincs
Telekterület típusa:
négyzetméter
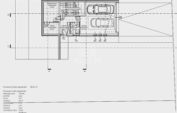
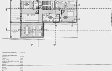
PANORÁMÁS, PRÉMIUM, ÚJ ÉPÍTÉSŰ CSALÁDI HÁZ BOCFÖLDÉN – ZALAEGERSZEGTŐL PÁR PERCRE! Van az a pillanat, amikor egy kilátás mindent eldönt. Ez az otthon pontosan ilyen. Bocfölde egyik legszebb, panorámás részén, csendes, zöld környezetben épül ez a modern, új építésű családi ház, amely tökéletes egyensúlyt teremt a nyugalom és a város közelsége között. Zalaegerszeg mindössze néhány perc autóval, mégis egy teljesen más, nyugodtabb világba érkezünk haza minden nap. A 1011 m²-es telken megvalósuló, 216 m²-es otthon minden részlete a kényelmes, élhető családi életet szolgálja. A két szinten kialakított elrendezés átgondolt, a terek világosak, jól használhatók, és természetes kapcsolatban állnak a környezettel. A felső lakószinten egy tágas, amerikai konyhás nappali–étkező fogad, amely a családi élet központja. Innen nyílik a 32 m²-es panorámás terasz, amely nem csupán egy kültéri tér, hanem az ingatlan egyik legnagyobb értéke – egy hely, ahol a reggelek nyugalomban indulnak, az esték pedig különleges hangulatban telnek. A három külön nyíló hálószoba kényelmes privát teret biztosít, míg a fürdőszoba, háztartási helyiség és külön toalett a mindennapi praktikumot szolgálják. Az alsó szinten található 38 m²-es dupla garázs, valamint további helyiségek – előtér, fürdő, tárolók és gépészet – biztosítják a funkcionalitást és a rendezett életteret. ⚙️ MODERN MŰSZAKI TARTALOM Az ingatlan korszerű, időtálló megoldásokkal épül: -30 cm Porotherm falazat 20 cm homlokzati szigetelés -hőszivattyús fűtés padlófűtéssel -háromrétegű nyílászárók -betonfödém -antracit tetőcserép. Ez a műszaki háttér nemcsak kényelmet, hanem hosszú távon gazdaságos fenntarthatóságot is biztosít. ⚙️EGYEDI LEHETŐSÉG Az ingatlan jelenleg kivitelezés alatt áll, így még lehetőség van arra, hogy az új tulajdonos bizonyos belső kialakítási elemeket saját igényeire szabjon. Ez ritka lehetőség egy ilyen adottságú, panorámás új építésű ingatlan esetében. ⚙️ELHELYEZKEDÉS csendes, panorámás környezet családias, rendezett utca Zalaegerszeg pár perc alatt elérhető ⚙️FŐBB ADATOK Telek: 1011 m² Lakóterület: 216 m² Nappali + 3 hálószoba 32 m² panorámás terasz 38 m² dupla garázs Új építés, modern gépészet Ez az ingatlan ideális választás azoknak, akik nem szeretnének kompromisszumot kötni: panoráma, nyugalom, modern technológia és városközeli elhelyezkedés egyetlen otthonban. Irányár: 139 000 000 Ft Részletes műszaki tartalommal, aktuális készültségi szinttel és személyes megtekintéssel kapcsolatban keressen bizalommal. A vásárlás teljes folyamatában támogatást nyújtok, beleértve a finanszírozást, jogi hátteret és igény esetén a belső kialakítás szakmai támogatását is.
https://ingatlanok.hu/elado/haz/bocfolde/139-millio-ft;274-negyzetmeter;4-szoba;geotermikus-futes/11610738