Az értékesítő:
Kiss Ildikó Mária
+36 30 950 8889

Eladó lakás Budapest VII. ker, 67 900 000 Ft, 41 négyzetméter

67 900 000 Ft
lakás, 41 négyzetméter
Építőanyag:
Tégla
Egész szobák:
1
Komfort fokozat:
Összkomfort
Ingatlan állapota:
Kitűnő
Azonosító:
11610812
Értékesítés típusa:
eladó
Ingatlan típusa:
lakás
Település:
Budapest VII. ker
Alapterület:
41
Ár:
67 900 000 Ft
Emelet:
1. emelet
Fűtés jellege:
Cirkó
Kilátás:
utcai
Építési év:
50 évesnél régebbi
Lift:
Van
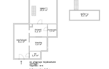
***VII. kerület, DOHÁNY utcában, a kőrúton belül, FELÚJÍTOTT, GALÉRIÁS, BERENDEZETT GARZON eladó!*** Ez a nagypolgári stílusban épült lakás a tulajdoni lapon 41 m2-es, a valóságban viszont 44 m2 alapterületű! Az ingatlanoz egy kényelmes méretű GALÉRIA is tartozik, így a hasznos élettér ennél is nagyobb. A közel 4 méteres belmagasság TÁGAS, levegős érzetet biztosít, a galéria kiválóan használható hálórészként vagy dolgozósarokként, így a nappali teljes értékű élettér marad. A lakás asztalos által MÉRETRE GYÁRTOTT bútorokkal, GARDRÓB szekrényekkel BERENDEZETT, amelyek a vételár részét képezik. Egy egyszerű tisztasági festés után szinte teljesen új állapotú otthont kapunk, az ingatlan gondosan KARBANTARTOTT és azonnal költözhető. A DK-i tájolásnak köszönhetően a lakás kifejezetten VILÁGOS és NAPFÉNYES, ami egész nap kellemes hangulatot teremt. Az ingatlan KIVÁLÓAN alkalmas első lakásnak, pároknak, egyedülállóaknak, vagy BEFEKTETŐKNEK a lakás könnyű KIADHATÓSÁGA miatt. KIVÁLÓ ELHELYEZKEDÉS és KITŰNŐ KÖZLEKEDÉS jellemzi az ingatlant, mivel minden karnyújtásnyira megtalálható, ami a kényelmes nagyvárosi élethez szükséges, az M2 metró Astoria és Blaha Lujza tér megállója, valamint számos busz és villamosjárat, így a város bármely pontja gyorsan megközelíthető. A környéken éttermek, kávézók, üzletek, egyetemek, kulturális és szórakozási lehetőségek széles választéka található. Ha szereti a BELVÁROS PEZSGÉSÉT, de hazaérve egy NYUGODT környezetre vágyik, akkor ez a lakás teljes mértékben megfelelő az ön igényeinek. Ha ingatlan vásárlásával egy ÉRTÉKÁLLÓ BEFEKTETÉST is szeretne egyben, akkor ez egy remek lehetőség az ön számára. Az OTP Ingatlanpont, mint egyetlen közvetlen banki hátterű ingatlanközvetítő társaság teljes körű ügyintézéssel és kedvezményes pénzügyi konstrukciókkal áll ügyfelei rendelkezésére! VIP-szolgáltatást nyújtunk az OTP-hiteltermékek ügyintézésében. Jogi és pénzügyi segítséget nyújtanak szakértőink, hogy az adásvétel folyamata gördülékeny legyen. Ha felkeltette érdeklődését az ingatlan, kérem, hívjon bizalommal akar hétvégén is!
https://ingatlanok.hu/elado/lakas/budapest-vii-ker/68-millio-ft;41-negyzetmeter;1-szoba;tegla-epitesu/11610812