Az értékesítő:
Spiesz Patrik
+36 30 910 9390

Eladó iroda/üzlethelyiség Pécs, 690 000 000 Ft, 1 650 négyzetméter

690 000 000 Ft
iroda/üzlethelyiség, 1 650 négyzetméter
Azonosító:
11610864
Értékesítés típusa:
eladó
Ingatlan típusa:
iroda/üzlethelyiség
Jelleg:
Irodaház
Település:
Pécs
Alapterület:
1650
Ár:
690 000 000 Ft
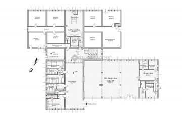
Exkluzív befektetési lehetőség!!! Pécs gyárvárosi részén eladó egy 3 szinten, össz. 1650 nm-en, teljes körűen felújított irodaház, tárolókkal, kialakítható üzlethelyiséggel. Az épületben több mint 35 db különböző méretű iroda, 1 db 240 nm-es üzlethelyiség, több raktár és lemez tároló garázs adható ki, vagy használható saját célra! A területen 30 autó számára zárt udvarban biztosított a parkolás. Az épület felújítása a következőket tartalmazta: - új tető szigetelés - homlokzati hőszigetelés - új műanyag nyílászárók - új burkolatok és festés - új épületgépészet (víz- és szennyvízvezeték, gáz- és fűtésrendszer) - új villanyvezeték-hálózat - gázkazán és hűtő.fűtő klímák - tűzjelző-, riasztó- és kamerarendszer Befektetés cél mellett ideális lehet akár részben, akár egész épületre vonatkozóan könnyűipari termelésre, cég telephelynek és munkásszállónak is! Az ingatlan teljes bútorzata és berendezése alku tárgyát képezi! I.ár: 690 M Ft 690000000 Ft Referencia szám: IH020586
https://ingatlanok.hu/elado/iroda/pecs/690-millio-ft;1650-negyzetmeter;irodahaz-jellegu;nincs-megadva-berendezett/11610864