Az értékesítő:
Berényi Viktória
+36 70 791 6174

Eladó panzió Hévíz, 467 945 720 Ft, 600 négyzetméter

467 945 720 Ft
panzió, 600 négyzetméter
Egész szobák:
1
Fűtés módja:
Gáz
Ingatlan állapota:
Azonosító:
11610873
Értékesítés típusa:
eladó
Ingatlan típusa:
panzió
Jelleg:
Szálloda
Település:
Hévíz
Alapterület:
600
Telekterület:
1038
Ár:
467 945 720 Ft
Fűtés jellege:
Cirkó
Klíma:
Van
Telekterület típusa:
Négyzetméter
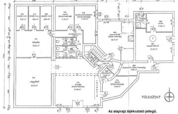
!!!ELADÓ PANZIÓ HÉVÍZEN!!!! Hévíz központjának vonzásában, 7 km-re a Balatontól, közel a Tófürdőhöz kínálunk eladásra egy bejáratott vendégkörrel rendelkező családi panziót minőségi berendezéssel. Az ingatlan 600nm, mely 8 apartmant és egy 98 nm-es lakást foglal magában. Minden apartmanhoz erkély vagy terasz tartozik. Felszerelt konyhablokk, TV és széf található minden apartmanban. A lakás De luxe értékelést kapott, egy 100nm-es teraszkapcsolattal rendelkezik. A földszinten wellness részleg lett kialakítva szaunával és pezsgőfürdővel. Külön konyha, tágas reggeliző, recepció, társalgó valamint egy drinkbár biztosítja a vendégek komfortját. Az épület klimatizált, a villamos energiát napelemek biztosítják. A kertben 9 méteres medence került elhelyezésre valamint egy fedett terasz. Parkolás a telken, nyitott parkolóban biztosított. Földszint: - 1 apartman, -2 kezelőhelység,-pezsgőfürdő szaunával, pihenővel, -Reggeliző, recepció, drinkbár,-konyha, raktárak, - személyzeti szoba, - kazánház, mosókonyha. 1. emelet: -2 apartman, 1 lakás. Tetőtér: -3 stúdió apartman, -2 apartman. További információért kérem hívjon. Köszönöm megtisztelő figyelmét. Amennyiben jelenlegi ingatlana értékesítésében is segítségére lehetek, illetve az OTP teljes ingatlankínálatával kapcsolatban kérem forduljon hozzám bizalommal. Az OTP Ingatlanpont, mint egyetlen közvetlen banki hátterű ingatlanközvetítő társaság teljes körű ügyintézéssel áll eladóik és vevőik rendelkezésére! Piaci és kedvezményes hitel- valamint lízingkonstrukciókat kínálunk mint lakásvásárlási hitel, szabad felhasználású hitel, babaváró hitel, CSOK Plusz-intézés, Otthonfelújítási Támogatás, egyéb felújítási hitelek. Az adásvételi szerződés megkötéséhez igény szerint megbízható ügyvédi közreműködést is biztosítunk. Ha felkeltettem érdeklődését, ne habozzon keresni a hét bármely napján reggel 9 és este 9 között. Ügyfeleinknek minden szolgáltatásunk (valóban) díjmentes. WE SPEAK ENGLISH, FEEL FREE TO CALL ME!
https://ingatlanok.hu/elado/panzio/heviz/468-millio-ft;600-negyzetmeter;szalloda-jellegu;cirko-futes/11610873