Az értékesítő:
Velki Nagy Viktória
+36 30 783 0075

Eladó családi ház Győr, 102 000 000 Ft, 143 négyzetméter

102 000 000 Ft
családi ház, 143 négyzetméter
Építőanyag:
Tégla
Egész szobák:
3
Ingatlan állapota:
Felújítandó
Azonosító:
11611161
Értékesítés típusa:
eladó
Ingatlan típusa:
családi ház
Jelleg:
Családi ház
Település:
Győr
Alapterület:
143
Telekterület:
1987
Ár:
102 000 000 Ft
Fűtés jellege:
Cirkó
Terasz:
Van
Erkély:
Nincs
Beépíthető tetőtér:
Van
Melléképület:
Nincs
Pince:
Nincs
Klíma:
Van
Telekterület típusa:
négyzetméter
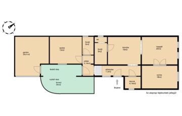
ELADÓ CSALÁDI HÁZ GYŐR-MÉNFŐCSANAKON – TERMÉSZETES OTTHON, ÓRIÁS TELEKKEL Győr-Ménfőcsanak csendes, zöldövezeti részén kínálunk megvételre egy 125 m²-es, 2005-ben teljeskörűen felújított családi házat + 35 m2 terasszal, amely egy 1987 m²-es telken helyezkedik el. Kiváló infrastruktúra: iskola, óvoda, bölcsőde, gyógyszertár, posta és üzletek a közelben Könnyű megközelíthetőség: autópálya gyorsan elérhető Jó közlekedés: több buszjárat is rendelkezésre áll Az ingatlan különlegessége a részben vályog falazat, amely nemcsak egyedi hangulatot ad az otthonnak, hanem számos előnyt is biztosít: Miért előnyös a vályogfal? ✔ természetes, egészséges lakóklíma – nem bocsát ki káros anyagokat ✔ páraszabályozó képesség – mindig kellemes belső levegő ✔ kiváló hőtárolás – nyáron hűvös, télen melegen tart ✔ alacsonyabb fűtési igény ✔ jó hangszigetelés – csendes, nyugodt élettér ✔ tűzálló és tartós, megfelelő karbantartás mellett hosszú élettartam ✔ természetes anyag, amelyet a rovarok sem károsítanak Ez az otthon ideális választás azoknak, akik energiatakarékos, természetközeli életre vágynak. A ház jellemzői: A ház első része vályogtégla 65 cm vastagságú , ami 2005-ben hátul hozzáépült: ✔ 38-as Porotherm tégla ✔ 2 hálószoba + tágas nappali (amerikai konyhás nappali) ✔ 2 fürdőszoba ✔ Bosch kondenzációs kombi gázkazán - radiátor hőleadókkal ✔ korszerű villamoshálózat ✔ egyedi gyártású fa nyílászárók ✔ külső hőszigetelés - speciális 5 cm légréteg + 10 cm kőzetgyapot + légáteresztő hőszigetelő vakolat ✔ klíma a maximális komfortért (2 db) ✔ elektromos garázskapu ✔ több autó számára udvari beállási lehetőség ✔ elektromos kovácsoltvas kapu További lehetőségek: -a hátsó házrésznél - beépíthető tetőtér – bővíthetőség -1987 m²-es telek – diófa, füge és mogyoróbokorral -kertészkedés, pihenés, akár gazdálkodás -terasz - hangulatos kikapcsolódáshoz -csendes, családbarát környezet Az ingatlan esztétikai felújítás után igazi ékszerdobozzá válhat. ???? Ha fontos Önnek a nyugalom, a tér és az egészséges otthoni környezet, ezt a házat érdemes megnéznie! Az ingatlanról készült alaprajz és videó a hirdetésben elérhető, melyek segítik a részletesebb betekintést. ???? Irányár: 102 000 000 Ft ???? Érdeklődés és időpont egyeztetés, akár hétvégén is: +36-30-7830075 A jelen hirdetésben rögzített, az ingatlannal kapcsolatos adatok, információk a Megbízó tájékoztatása alapján kerültek meghatározásra. Az adásvétel során teljeskörű lebonyolítást vállalunk díjmentes jogi tanácsadással, bankfüggetlen hitelügyintézéssel! (További képekért és információkért kérem hívjon!)
https://ingatlanok.hu/elado/haz/gyor/102-millio-ft;143-negyzetmeter;3-szoba;cirko-futes/11611161