Az értékesítő:
Sápi Balázs
+36 20 772 2429

Eladó családi ház Budapest XVI. ker, 239 000 000 Ft, 180 négyzetméter

239 000 000 Ft
családi ház, 180 négyzetméter
Építőanyag:
Tégla
Egész szobák:
5
Komfort fokozat:
Dupla komfort
Ingatlan állapota:
Kitűnő
Azonosító:
11611229
Értékesítés típusa:
eladó
Ingatlan típusa:
családi ház
Jelleg:
Családi ház
Település:
Budapest XVI. ker
Alapterület:
180
Telekterület:
1083
Ár:
239 000 000 Ft
Kor:
Új építésű
Telekterület típusa:
négyzetméter
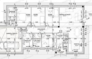
Budapest XVI. kerületében csendes, rendezett kertvárosi környezetben, kiváló elosztású, nappali + 4 szobás, dupla garázsos, energiatakarékos családi ház 1083nm-es telken eladó!  Műszaki adatok: - 30-as Porotherm tégla falazat + 15cm homlokzati  szigeteléssel, -hőszivattyú + padlófűtés, -H-tarifa - 3 rétegű, hőszigetelt üvegezésű műanyag nyílászárók redőnyökkel, - 2 db klíma, - riasztó kiállás - Burkolatok, belső ajtók a vevői igényei szerint még szabadon választhatók! Kérésre teljes műszaki tartalmat, alaprajzot szívesen küldünk! Elosztás:  - Előtér, nappali-konyha-étkező, kamra, 4 szoba, gardrób, két fürdő, vendégmosdó, háztartási helyiség, 30,51nm garázs - tároló + 14,24nm terasz Telek: - 1083nm telek, - elektromos kapu, - térkövezett járda. Környék:  -  Kertvárosi környezet, tömegközlekedési eszközök gyalogosan 7-10 perc alatt elérhetőek. Irányár: 239Mft Hivatkozási szám: 2518186. Megtekinthető telefonos időpont egyeztetés alapján: Sápi Balázs +36 20 772-2429 sapibalazs@godolloi.hu   GÖDÖLLŐ INGATLANKÖZPONT - www.godolloi.hu: Gödöllő és környéke legnagyobb ingatlan választéka /Gödöllő, Szada, Veresegyház, Kistarcsa, Kerepes, Erdőkertes, Fót, Dunakeszi/ eladó-kiadó családi ház, telek, lakás! Ingatlan építés és felújítás!    
https://ingatlanok.hu/elado/haz/budapest-xvi-ker/239-millio-ft;180-negyzetmeter;5-szoba;nincs-megadva-futes/11611229