Az értékesítő:
Kovács Andrea
+36 30 739 8034

Eladó iroda/üzlethelyiség Pécs, 690 000 000 Ft, 1 650 négyzetméter

690 000 000 Ft
iroda/üzlethelyiség, 1 650 négyzetméter
Azonosító:
11611290
Értékesítés típusa:
eladó
Ingatlan típusa:
iroda/üzlethelyiség
Jelleg:
Irodaház
Település:
Pécs
Alapterület:
1650
Ár:
690 000 000 Ft
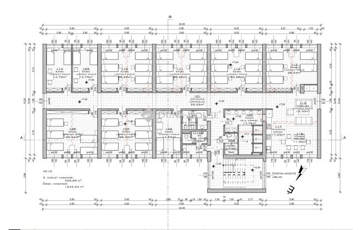
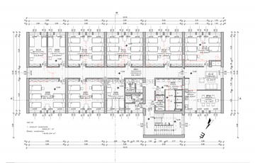
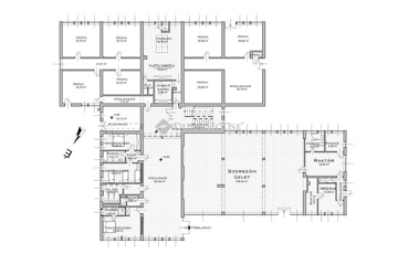
Exkluzív befektetési lehetőség!!! Pécs gyárvárosi részén eladó egy 3 szinten, össz. 1650 nm-en, teljes körűen felújított irodaház, tárolókkal, kialakítható üzlethelyiséggel. Az épületben több mint 35 db különböző méretű iroda, 1 db 240 nm-es üzlethelyiség, több raktár és lemez tároló garázs adható ki, vagy használható saját célra! A területen 30 autó számára zárt udvarban biztosított a parkolás.Az épület felújítása a következőket tartalmazta:- új tető szigetelés- homlokzati hőszigetelés- új műanyag nyílászárók- új burkolatok és festés- új épületgépészet (víz- és szennyvízvezeték, gáz- és fűtésrendszer)- új villanyvezeték-hálózat- gázkazán és hűtő.fűtő klímák- tűzjelző-, riasztó- és kamerarendszerBefektetés cél mellett ideális lehet akár részben, akár egész épületre vonatkozóan könnyűipari termelésre, cég telephelynek és munkásszállónak is!Az ingatlan teljes bútorzata és berendezése alku tárgyát képezi!I.ár: 690 M Ft
https://ingatlanok.hu/elado/iroda/pecs/690-millio-ft;1650-negyzetmeter;irodahaz-jellegu;nincs-megadva-berendezett/11611290