Az értékesítő:
Kiss Luca
+36 20 287 2443

Eladó lakás Hajdúszoboszló, 69 000 000 Ft, 45 négyzetméter

69 000 000 Ft
lakás, 45 négyzetméter
Egész szobák:
2
Komfort fokozat:
Összkomfort
Ingatlan állapota:
Kitűnő
Azonosító:
11611579
Értékesítés típusa:
eladó
Ingatlan típusa:
lakás
Település:
Hajdúszoboszló
Alapterület:
45
Ár:
69 000 000 Ft
Emelet:
Földszint
Fűtés jellege:
Egyéb
Lift:
Nincs
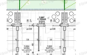
Prémium földszinti kertkapcsolatos lakás Hajdúszoboszló legkeresettebb részén Az egyik rezidencia földszintjén kínálunk megvételre egy kivételes minőségben megépülő, kertkapcsolatos prémium ingatlant Magyarország egyik legnépszerűbb üdülővárosában, Hajdúszoboszlón, közvetlenül Európa legnagyobb fürdőkomplexumának közelében.   Kertkapcsolat, kényelem, akadálymentesség A földszinti elhelyezkedés valódi előnyt jelent: lépcsőzés nélkül, könnyen megközelíthető, ideális választás idősebbeknek, kisgyermekes családoknak, valamint mindazoknak, akik a kényelmet és a praktikusságot keresik. A közvetlen kertkapcsolat a lakás természetes meghosszabbítása – privát zöld tér, ahol a reggeli kávé, a pihenés vagy a baráti beszélgetések igazán különleges élményt nyújtanak. A kertkapcsolatos lakásokhoz automatizált HUNTER öntözőrendszer tartozik, így a zöldfelület gondozása kényelmes és időtakarékos.   Minőség már a szerkezetben is Az épület monolit vasbeton tartószerkezettel készül, amely kiemelkedő stabilitást és hosszú élettartamot biztosít. A vázkitöltő falazat YTONG pórusbetonból, míg a lakások közötti válaszfalak speciális RIGIPS hangszigetelő rendszerrel épülnek, így a nyugalom és a kiváló hanggátlás garantált. A belső kialakítás során a legmodernebb építőpanelek és szerkezeti megoldások biztosítják a korszerű technológiai rendszerek helyigényét.   Energiahatékonyság és komfort Az épület homlokzatát vakolható kőzetgyapot hőszigetelés borítja, amely nemcsak kiváló hő- és hangszigetelést, hanem magas tűzbiztonságot is nyújt. Az YTONG falazattal együtt ez a megoldás rendkívül kedvező energetikai értékeket eredményez, közelítve a jogszabályokban meghatározott korszerű energiahatékonysági szintekhez. A homlokzati nyílászárók GEALAN S9000, középtömítéses, háromrétegű üvegezésű, melegperemes kivitelben készülnek, melyek kiváló hő- és hangszigetelést biztosítanak. A lakásbejárati ajtók egységesen magas minőségűek, biztonságosak és jó hanggátló tulajdonságokkal rendelkeznek.   Modern fűtés–hűtés rendszer A lakásokban mennyezeti hűtés–fűtés kerül kialakításra, amely egyenletes hőérzetet, letisztult belső tereket és alacsony üzemeltetési költséget biztosít. A vizes helyiségekben elektromos padlófűtés és törölközőszárítós radiátor növeli a komfortérzetet. Villamos hálózat – jövőbiztos megoldások Minden lakás H-tarifás mérővel rendelkezik. Alapfelszereltségként 1×32A, a szauna-előkészítéssel rendelkező lakásoknál 3×20A áramerősség áll rendelkezésre. A kapcsolók és szerelvények Schneider Asfora termékcsaládból kerülnek beépítésre. Az épületet komplex villámvédelmi rendszer óvja. A közösségi terekben korszerű, energiatakarékos LED világítás, mozgás- és alkonykapcsolók, valamint 13 személyes lift szolgálja a lakók kényelmét.   Burkolatok és belső kialakítás Mélygarázs: ipari minőségű, könnyen tisztítható vasbetonpadló Lépcsőház, közlekedők, teraszok: csúszásmentes gres burkolat Lakások: hidegburkolatok mennyezetig a fürdőben és WC-ben melegburkolatok alátéttel és szegőléccel választható burkolatok bruttó 10.000 Ft/m² értékig A beltéri ajtók tömör kivitelű, festett MDF ajtók, 7 választható színben. A lakások egységesen fehér falakkal készülnek, így könnyen személyre szabhatók.   Kiváló lokáció – biztos befektetés A Csónakázótó panorámája, a világhírű gyógyfürdő, valamint Hajdúszoboszló fejlett infrastruktúrája garantálja az ingatlan hosszú távú értékállóságát. Ez a földszinti lakás állandó otthonnak, nyaralónak és befektetésnek egyaránt kiváló választás, hiszen a környék egész évben kiemelten keresett.   Ez az ingatlan nem csupán lakás, hanem életminőség, nyugalom és értékálló döntés egyben.
https://ingatlanok.hu/elado/lakas/hajduszoboszlo/69-millio-ft;45-negyzetmeter;2-szoba;nincs-megadva-epitesu/11611579