Az értékesítő:
Borosné Hajnalka
+36 70 649 7985

Eladó családi ház Kecskemét, 39 900 000 Ft, 40 négyzetméter

39 900 000 Ft
családi ház, 40 négyzetméter
Építőanyag:
Tégla
Egész szobák:
2
Ingatlan állapota:
Azonosító:
11612106
Értékesítés típusa:
eladó
Ingatlan típusa:
családi ház
Jelleg:
Családi ház
Település:
Kecskemét
Alapterület:
40
Telekterület:
716
Ár:
39 900 000 Ft
Szintek száma:
Földszintes
Fűtés jellege:
Egyéb
Kor:
50 évesnél régebbi
Telekterület típusa:
négyzetméter
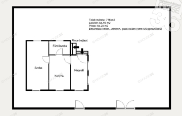
Kecskemét kertvárosi részén, a Halasi úti hobbysoron eladóvá vált egy teljes körűen felújított kis házikó. Jellemzői: - Telek mérete: 716 m2 - Összközműves - Besorolása: belterület, zártkert, gazdasági épület - Lakótér: br.40 m2 : nappali, konyha, fürdőszoba, hálószoba - Pince: 20 m2 - Teljeskörűen felújított (2020/2021: cserélt nyílászárók, burkolatok, konyhabútor, fürdőszoba, vezetékek, fűtéskorszerűsítés) - Szigetelés, új külső színezés a házon (2023) Figyelem az adatlap megbízónktól kapott adatok alapján készült, pontosságáért felelősséget nem tudunk vállalni! Szolgáltatásaink Kereső ügyfeleink számára INGYENESEK! Amennyiben eladó-kiadó ingatlana van vagy finanszírozási megoldást keres , hívjon, megtaláljuk a legjobb lehetőséget Önnek! A HOUSE36 kínálatában található összes ingatlannal kapcsolatban tudok felvilágosítást nyújtani! Hívjon bizalommal! Az iroda legfrissebb, aktuális kínálatát a HOUSE36 saját weboldalán találja!
https://ingatlanok.hu/elado/haz/kecskemet/40-millio-ft;40-negyzetmeter;2-szoba;egyeb-futes/11612106