Az értékesítő:
Gáváné Irén
+36 30 577 8872

Eladó családi ház Nyírtelek, 68 000 000 Ft, 83 négyzetméter

68 000 000 Ft
családi ház, 83 négyzetméter
Építőanyag:
Tégla
Egész szobák:
3
Ingatlan állapota:
Épülő
Azonosító:
11612208
Értékesítés típusa:
eladó
Ingatlan típusa:
családi ház
Jelleg:
Családi ház
Település:
Nyírtelek
Alapterület:
83
Ár:
68 000 000 Ft
Fűtés jellege:
Geotermikus
Kor:
1-5 éves
Telekterület típusa:
négyzetméter
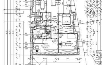
Eladó egy modern, új építésű, Önálló családi ház Nyírtelek nyugodt, zöldövezeti részén.    A ház 83 nm, modern elrendezésű - 3 külön nyíló szoba, kettő teraszkapcsolatos - Tágas, világos nappali, amerikai konyha, teraszkapcsolattal - Kamra - Fürdőszoba, wc külön helyiségben - Háztartási helyiség - Közlekedő elrendezésű.   A ház minőségi alapanyagokból, korszerű hőszigeteléssel, energiatakarékos megoldásokkal és gépészeti megoldásokkal épült.  Tégla falazat (Porotherm 30), 15 cm külső szigetelés, belső falak gépi vakolással, hőszivattyús padlófűtés, Kömmerling 3 rétegű műanyag nyílászáró elektromos redőny vezeték előkészítéssel, 5 kw klíma, cserép tetőfedés, 25 cm födémszigetelés, fedett autóbeálló elektromos garázskapuval szerelve.   Az ingatlan kulcsrakész állapotban várja új tulajdonosát, akinek lehetősége van még a belső terek személyre szabására is, így ízlése szerint Választhat szanitereket, burkolatokat, beltéri ajtókat.   Telek mérete: 360 nm, körbekerített, utcafronti kerítéssel, autóbejáró elektromos garázskapuval szerelve.    Energetikai besorolás: AA+   Amennyiben felkeltette érdeklődését várom hívását! Vásárlóinknak a szolgáltatás díjtalan! Az ingatlan azonosítója: 68683Érdeklődni: +36305778872 Az ingatlan azonosítója: 68683 Érdeklődni: +36305778872
https://ingatlanok.hu/elado/haz/nyirtelek/68-millio-ft;83-negyzetmeter;3-szoba;geotermikus-futes/11612208