Az értékesítő:
Borosné Hajnalka
+36 70 649 7985

Eladó ipari ingatlan Kecskemét, 379 900 000 Ft, 590 négyzetméter

379 900 000 Ft
ipari ingatlan, 590 négyzetméter
Ingatlan állapota:
Átlagos
Azonosító:
11612647
Értékesítés típusa:
eladó
Ingatlan típusa:
ipari ingatlan
Jelleg:
Egyéb
Település:
Kecskemét
Alapterület:
590
Ár:
379 900 000 Ft
Telekterület típusa:
Négyzetméter
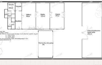
ELADÓ Kecskeméten a Mindszenti krt.-ról könnyen megközelíthető, igényesen felújított telephely raktárral! Jellemzői: - Besorolás: Gksz - Telek mérete: 1.500 m2 - Főépület: 390 m2 (I.: - 67 m2: szociális helységek, konyha, ügyféltér, tárgyaló II.: - 98 m2: műhely III.: - 128 m2: raktár IV.: - 97 m2: raktár) - Raktár: könnyűszerkezetes, fedett : 200 m2 (Magassága:5-7,5 m) - Daru pálya: mechanikus (8t) - Teljesen leburkolt terület - Elektromos kapu - Kamera rendszer + riasztó - 2022-ben műszaki (vezeték-,nyílászáró- és tetőcsere, szigetelés, fűtéskorszerűsítés)- és esztétikai felújítások (burkolat- és konyhabútorcsere, fürdőszoba ill.festés) - Klimatizált helyiségek Az eladási ár az ÁFÁ-t nem tartalmazza! Figyelem az adatlap megbízónktól kapott adatok alapján készült, pontosságáért felelősséget nem tudunk vállalni! Szolgáltatásaink Kereső ügyfeleink számára INGYENESEK! Amennyiben eladó-kiadó ingatlana van vagy finanszírozási megoldást keres, hívjon, megtaláljuk a legjobb lehetőséget Önnek! A HOUSE36 kínálatában található összes ingatlannal kapcsolatban tudok felvilágosítást nyújtani! Hívjon bizalommal! Az iroda legfrissebb, aktuális kínálatát a HOUSE36 saját weboldalán találja!
https://ingatlanok.hu/elado/ipari_ingatlan/kecskemet/380-millio-ft;590-negyzetmeter;egyeb-jellegu;nincs-megadva-tulajdonviszony/11612647