Az értékesítő:
Egri Attila
+36 30 442 1415

Eladó lakás Budapest XII. ker, 94 000 000 Ft, 58 négyzetméter

94 000 000 Ft
lakás, 58 négyzetméter
Építőanyag:
Tégla
Egész szobák:
3
Komfort fokozat:
Összkomfort
Ingatlan állapota:
Felújítandó
Azonosító:
11612683
Értékesítés típusa:
eladó
Ingatlan típusa:
lakás
Település:
Budapest XII. ker
Alapterület:
58
Ár:
94 000 000 Ft
Tulajdonviszony:
Saját
Emelet:
1. emelet
Fűtés jellege:
Konvektoros
Kilátás:
udvari
Építési év:
50 évesnél régebbi
Erkély:
Nincs
Pince:
Van
Tároló:
Nincs
Lift:
Nincs
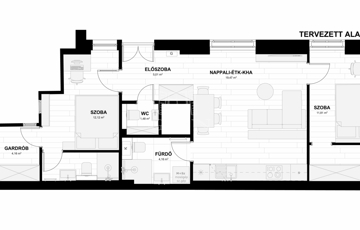
XII. kerületben, Krisztinavárosban, kiváló közlekedés és ellátottság mellett, a MOM park és a Széll Kálmán tér között, csendes egyirányú utcában, 1920-as években épült, példás anyagi helyzetű, folyamatosan karbantartott társasházban, kiváló adottságú és elosztású, 1.emeleti, 58 nm-es, 2 szobás, többféle átépítési lehetőséget kínáló, (könnyedén nappali + 2 hálószobássá alakítható), napos-világos fekvésű, alacsony fenntartású, közös költség korlátlan vízfogyasztással: 19.600 Ft, gázkonvektoros fűtésű, belső udvarra néző, felújítandó állapotú lakás, kulturált lakóközösségű házban eladó. Az ingatlan tehermentes azonnal birtokba vehető! A környék biztonságos, infrastruktúrája és közlekedése kitűnően ellátott! A lakás közelében, élelmiszer boltok, (SPAR), gyógyszertár, több park, (Vérmező Lombos park) játszótér, futópálya, Tesnevelési Egyetem, bevásárló központok (MOM park, MAMMUT) található. Az ingatlan tökéletes elhelyezkedésének köszönhetően kiválóan alkalmas befektetési célokra, rendelőnek, irodának, hosszú vagy rövid távú bérbeadásra. További részletekért várom megtisztelő hívását. (hétvégén is) EA
https://ingatlanok.hu/elado/lakas/budapest-xii-ker/94-millio-ft;58-negyzetmeter;3-szoba;tegla-epitesu/11612683