Az értékesítő:
Marton Zsolt
+36 70 332 7568

Eladó lakás Budapest XIX. ker, Kispest, 59 900 000 Ft, 59 négyzetméter

59 900 000 Ft
lakás, 59 négyzetméter
Építőanyag:
Panel
Egész szobák:
1
Komfort fokozat:
Összkomfort
Ingatlan állapota:
Felújítandó
Azonosító:
11612914
Értékesítés típusa:
eladó
Ingatlan típusa:
lakás
Település:
Budapest XIX. ker
Alapterület:
59
Ár:
59 900 000 Ft
Tulajdonviszony:
Saját
Emelet:
8. emelet
Fűtés jellege:
Távfűtés
Elhelyezkedés:
Társasház
Kilátás:
kertre néző
Építési év:
21-50 éves
Erkély:
Nincs
Kert:
Nincs
Kertkapcsolat:
Nincs
Kocsibeálló:
Nincs
Pince:
Nincs
Tároló:
Nincs
Lift:
Van
Klíma:
Van
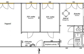
XIX. kerületben, Kispesten Eladó egy, 59 nm-es, 1 + 2 fél szobás, tehermentes lakás. 10 emeletes liftes panelház 8. emeletén. Különnyíló szobákkal, közepes állapotban, világos, redőnyös, ÜRES AZONNAL KÖLTÖZHETŐ! Dél-keleti és Dél-nyugati tájolásának köszönhetően, a lakást mindig napfény járja át. TEHERMENTES ÖRÖKLAKÁS! A villamoshálózat pár éve lett felújítva (falon kívüli), légkondicionált, nyílászárói is műanyag hő és hangszigeteltre lettek cserélve. Kiváló a közlekedési és a bevásárlási lehetőség: a 3-as Metró, Kőbánya-Kispest végállomás 5 perc. Buszok: 68, 148, 151-es. Villamos: 42-es, 50-es. Éjszakai járatok (914, 950, 950A) Shopmark, Kispesti nagy piac, Lidl, Kisboltok, uszoda, óvodák (Kispesti Zöld Ágacska Óvoda a ház előtt közvetlenül), iskolák (Puskás Ferenc Általános Iskola a ház mellett közvetlenül), Játszóterek, Háziorvosi , és gyermekorvosi rendelő, gyógyszertárak a közelben.
https://ingatlanok.hu/elado/lakas/budapest-xix-ker/60-millio-ft;59-negyzetmeter;3-szoba;panel-epitesu/11612914