Az értékesítő:
Sági Rita Barbara
+36 20 542 5874

Eladó családi ház Mohács, 54 990 000 Ft, 333 négyzetméter

54 990 000 Ft
családi ház, 333 négyzetméter
Építőanyag:
Tégla
Egész szobák:
8
Fűtés módja:
Gáz
Ingatlan állapota:
Azonosító:
11614153
Értékesítés típusa:
eladó
Ingatlan típusa:
családi ház
Jelleg:
Családi ház
Település:
Mohács
Alapterület:
333
Telekterület:
880
Ár:
54 990 000 Ft
Szintek száma:
Földszintes
Fűtés jellege:
Egyedi
Erkély:
Van
Telekterület típusa:
négyzetméter
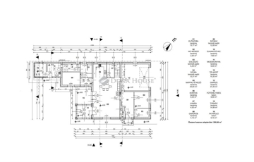
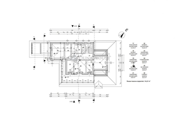
Félkész családi ház eladó Mohács egyik legszebb utcájában alakítsa saját elképzelése szerint! Mohács egyik legszebb utcájában a Táltos utcában kínálunk megvételre egy félkész állapotú családi házat, amely kiváló lehetőséget nyújt azok számára, akik saját igényeik szerint szeretnék befejezni és kialakítani jövőbeli otthonukat.Az ingatlan 880 m²-es telken helyezkedik el, a tervezett 333 m² alapterületű épület pedig tágas, jól alakítható tereket biztosít, így akár egy nagyobb család számára is ideális prémium otthon valósítható meg.A kivitelezés folytatásában teljes körű segítséget tudunk biztosítani, hiszen minden szükséges szakember rendelkezésre áll az építkezés befejezéséhez.Az építkezés főbb adatai38 cm-es Leiertherm tégla falazatMonolit födém mindkét szintenTerrán Danubia barna cserépfedésA telek teljes közműellátottsággal rendelkezik: villany gáz víz szennyvíz kábel TVAz ingatlan jelenlegi állapota nagy szabadságot ad a belső terek kialakításában, így minden részlet a leendő tulajdonos elképzelései szerint valósítható meg. Ha egy kiváló elhelyezkedésű ingatlant keres, ahol saját elképzelései szerint alakíthatja ki álmai otthonát, akkor ez a lehetőség Önre vár.Álmodja meg és valósítsa meg otthonát Mohács egyik legjobb utcájában, a Táltos utcában! 54990000 Ft Várom hívását! Keressen ! Segítek! 06205425874 Referencia szám: HZ075744-NOK
https://ingatlanok.hu/elado/haz/mohacs/55-millio-ft;333-negyzetmeter;8-szoba;egyedi-futes/11614153