Az értékesítő:
Unger-Takács Anikó
+36 70 235 7733

Eladó lakás Győr, 59 500 000 Ft, 64 négyzetméter

59 500 000 Ft
lakás, 64 négyzetméter
Építőanyag:
Panel
Egész szobák:
3
Ingatlan állapota:
Felújított
Azonosító:
11614307
Értékesítés típusa:
eladó
Ingatlan típusa:
lakás
Település:
Győr
Alapterület:
64
Ár:
59 500 000 Ft
Fűtés jellege:
Távfűtés
Erkély:
Van
Erkély mérete:
2.00 m2
Kert mérete:
3.00 m2
Kertkapcsolat:
Nincs
Pince:
Nincs
Lift:
Nincs
Klíma:
Van
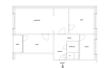
Győr Nádorváros és Adyváros határán, 4 szintes, panelprogramos tömbben eladó ez a remek elosztású, frissen felújított 3 szobás lakás. Az ingatlan egy 4 emeletes társasház negyedik emeletén található, felettünk már nem zajong senki, továbbá a sportos alkat is garantált... Elosztása szerint: 1 nappali-étkező/hall, 2 szoba, konyha, fürdőszoba, wc, folyosó helyiségekből áll. A társasház átesett a panelprogramon, külső hőszigetelést kapott, új műanyag nyílászárók kerültek beépítésre 2 rétegű, hőszigetelt üvegezéssel, a radiátorok önálló almérőkkel felszereltek. A belső tér az elmúlt hónapokban teljes felújításon esett át: - a villanyvezetékek áthúzásra kerültek, 25A áramerősség - két hűtő-fűtő klíma is beépítésre került - a fürdőszoba és a wc teljesen megújult - a konyha is új, mely "IKEA köntösbe öltözött": Metod konyhabútor 25 év garanciával, fékezett behúzású vasalatokkal - mosogatógép csatlakozás is kiépítésre került - a bejárati ajtó és a beltéri ajtók is újak - erkély szigetelve, frissen festve, wpc burkolat a padlón Ajánlom fiatal párok részére első lakásnak, vagy családnak 1-2 kisgyermekkel. Befektetésnek is remek megoldás, hiszen a lakás gyorsan, jó áron kiadható! Azonnal költözhető lakás, ami valóban felújításra, modernizálásra került, nem csak úgy rámondjuk! A lépcsőház tiszta, rendezett, kedves, barátságos a lakóközösség. A közös költség ~9.000,-Ft/hó, a panelprogramnak köszönhetően a fűtési díj is nagyon kedvező. A közelben minden megtalálható, amire a hétköznapokban szükség lehet: kórház, orvosi rendelő, gyógyszertár, boltok, sportpálya, vásárcsarnok, pékség, óvoda, iskola, Pláza. A buszmegálló is csak 1 perces sétára van, ahonnan a város minden irányába jó a buszközlekedés. Ügyfeleim számára az adásvétel során teljeskörű lebonyolítást vállalok, igény esetén díjmentes, bankfüggetlen hiteltanácsadással és ügyintézéssel segítem őket. A hirdetésben szereplő adatok a tulajdonostól kapott információk alapján kerültek rögzítésre. Várom hívását, nézzük meg együtt, kevés szép lakás van most a piacon, legyen ez az Öné! Az ingatlan rugalmasan megtekinthető, akár hétvégén is, hiszen a a kulcs nálam, hívjon bármikor. Unger-Takács Anikó +36 (70) 235 7733 unger.aniko@varos.hu (További képekért és információkért kérem hívjon!)
https://ingatlanok.hu/elado/lakas/gyor/60-millio-ft;64-negyzetmeter;3-szoba;panel-epitesu/11614307