Az értékesítő:
Pilis Anna
+36 20 400 4025

Eladó családi ház Pilis, 90 000 000 Ft, 165 négyzetméter

90 000 000 Ft
családi ház, 165 négyzetméter
Egész szobák:
5
Komfort fokozat:
Összkomfort
Ingatlan állapota:
Azonosító:
11614376
Értékesítés típusa:
eladó
Ingatlan típusa:
családi ház
Jelleg:
Családi ház
Település:
Pilis
Alapterület:
165
Telekterület:
1134
Ár:
90 000 000 Ft
Terasz:
Van
Erkély:
Nincs
Melléképület:
Nincs
Pince:
Van
Parketta:
Nincs
Kábel TV:
Nincs
Telekterület típusa:
négyzetméter
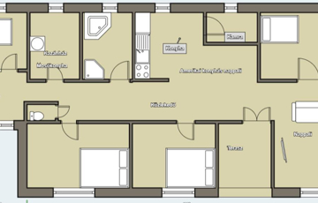
Készpénzes érdeklődöt vár a tulajdonos.Akár adás vételi szerződés után gyorsan birtokba vehető.Pilis város központhoz közeli részén , az M4 és a 4főút közti környékén megépült ,vegyesfalazatú igényes ház vált eladóvá.1134nm-es telken terül el , 165nm -es hasznos alapterülettel+két kocsi tároló garázshelységekkel.Az épület földszintes , akadály mentesen lehet közlekedni benne , jó elosztású hatalmas tágas terek jellemzik.Nagy amerikai konyhás nappali ebédlő ,nyitott terek , 4 hálószoba , fürdő ,wc, kamra, közlekedő , tágas terasz helységekre tagolódik.2005 ben újjáépítette ,kibővitette a tulajdonos.Vert vályog falazatú 40cm ,válaszfalaknál tégla , szürke bramac tető cserép héjazattal látták el . Kazánház mely tágas mosókonyhaként is is funkcionál , alatta pince helység lett kialakítva.MInden közmű bekötve , meleg vizet gáz bojler szolgáltatja ,fűtése központi radiátoros , jelenleg vegyestüzelésű kazánról működik , természetesen gázcirkó is van ami jelenleg korszerűsítésre vár.Nappaliban klíma lett elhelyezve.Kert kapu elektromosan nyílik , rendezett udvar , térkövezett autó beálló.Nyílászárói műanyag készültek thermo üvegezéssel , Illetve a bejárati ajtó fából készült.Jó beosztású , ajánlom nagy családosoknak , vagy összeköltözőknek, akár több generációnak is.Állomástól 2km -re , illetve penny, posta, ovoda ,iskola 1km méteren belül elérhetőek.M4es felhajtás 2 km-en belül.Konyha kerti rész is adott. Az udvar parkosított, térkövezett , kerítés utcafront felől stabil.Fúrt kút is rendelkezésre áll.Tehermentesn , egy tulajdonos.Irodánk ügyfelei részére ingyenes hitel ügyintézéssel áll rendelkezésükre, továbbá segítséget nyújtunk adásvételi szerződéshez ügyvédi háttér biztosításához ,és energetikai tanúsítvány elkészítésében is. Pilis menet rendszerű vonatközlekedéssel rendelkezik, mely Budapest Nyugati pályaudvartól 48 perces menet idővel közelíthetõ meg, Budapestõl 50 km távolságra ,Ferihegy repülõtértõl az új M4 autópályán 30 km távolságra helyezkedik el. Amennyiben felkeltettem érdeklődését, kérem hívjon bizalommal, és találjuk meg álmai otthonát.Vevőinknek szolgáltatásaink ingyenesek !Jöjjön el, szeressen bele, tegyen ajánlatot.Akár hétvégén is .
https://ingatlanok.hu/elado/haz/pilis/90-millio-ft;165-negyzetmeter;5-szoba;nincs-megadva-futes/11614376