Az értékesítő:
Kömőcziné Mezei Henrietta
+36 20 352 6426

Eladó lakás Győr, 63 900 000 Ft, 55 négyzetméter

63 900 000 Ft
lakás, 55 négyzetméter
Építőanyag:
Csúsztatott zsalu
Egész szobák:
2
Komfort fokozat:
Összkomfort
Ingatlan állapota:
Felújított
Azonosító:
11614478
Értékesítés típusa:
eladó
Ingatlan típusa:
lakás
Település:
Győr
Alapterület:
55
Ár:
63 900 000 Ft
Lift:
Nincs
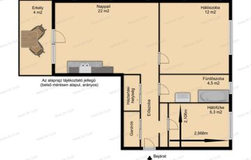
Győr-Moson-Sopron vármegye, Győr, Nádorváros, felújított modern 2+fél szobás, erkélyes lakás eladó Győr Nádorvárosban eladó egy teljesen felújított 2. emeleti lakás 4 emeletes (csúszózsalus) társasházban. A közelben iskolák, óvódák, élelmiszerbolt, egészségügyi központ, buszmegálló, cukrászda séta távolságra elérhető. Az utcában a parkolás ingyenes (ez már itt ritkaság). A társasház rendezett, tiszta, összeszokott lakóközösség jellemzi. A lépcsőházban már műanyag nyílászárók vannak beépítve, a tető pedig szigetelésen is átesett. A lakás erkélye hátsó fasorra néz, amely nagyon kellemes, hangulatos. A nagy ablakoknak köszönhetően a lakás rendkívül világos.   Az ízléses felújítás pedig precíz és magas minőségben készült az alábbiak szerint: - villanyvezetékek (32A), konnektorok, tv kiállások bővítése, víz- és szennyvízvezeték cserélve - fűtése Bosch kondenzációs gázkazán által, teljesen új lapradiátorok, a fűtéscsövek az aljzatba süllyesztve, nem látszódnak sehol. - 3,5 kW-os hűtő-fűtő AUX klíma a nappaliban, fürdőszobában törölközőszárítós radiátor fekete színben, mely fekete dizájn megjelenik az egész lakásban - burkolatok: különleges, modern tölgyfa hatású vízálló laminált padló (Egger), fürdőszobában olasz járólap - új konyhabútor beépített gépekkel (villanysütő, főzőlap, elszívó, gránit mosogató) - fürdőszobában magasminőségű szaniterek, olasz, IDEA márkájú burkolatok - egyedileg gyártott fa beltéri ajtók, tárolókon praktikus tolóajtók - ablakai háromrétegű fehér műanyag Kömmerling, bejárati ajtó szintén új fehér műanyag. - erkély műfüves borítást kapott és új, modern, biztonsági üveg erkélykorlát került beépítésre.   Elrendezése praktikus, a konyha áthelyezésével egy újabb helyiséget kaptunk, mely dolgozó szobának, vagy kisebb hálófülkének is kiválóan alkalmas. Méreteket lásd az alaprajzon a fotók között.   Elosztása: előszoba, amerikai konyhás nappali, erkély, fürdőszoba káddal és WC-vel, egy valóban tágas hálószoba és egy hálófülke (akár gyerekszobának, vagy dolgozószobának). Előszobában két tároló tolóajtóval elválasztva, egyik akár gardróbnak, másikban mosógépkiállás, valamint egy szárítógép is elfér. Alagsorban saját tároló tartozik hozzá.   Miért érdemes ezt venni? Kiváló lokáció, csodás platánfás utca, ingyenes parkolás, a lakás elosztásának köszönhetően kiváló egy párnak, egy kis családnak, esetleg egyedülálló szülőnek egy gyermekkel. A felújítás mindenre kiterjedt, így ehhez a lakáshoz hosszú évekig biztos, hogy nem kell nyúlni, nem lesz vele költség.   Azonnal költözhető, tehermentes.   Ne maradjon le róla, hívjon még ma!   A jelen hirdetésben rögzített, az ingatlannal kapcsolatos adatok, információk, Megbízó tájékoztatása alapján kerültek meghatározásra.   Irodánkban az alábbiakkal tudjuk segíteni a gyors és megbízható ügyintézést: -bankfüggetlen hitelügyintézés, CSOK Plusz -energetikai tanúsítvány, villamos felülvizsgálat -értékbecslés -ügyvédi szerződések, jogi tanácsadás -építész, tervezés, kivitelezés, felújítás, villanyszerelés      
https://ingatlanok.hu/elado/lakas/gyor/64-millio-ft;55-negyzetmeter;3-szoba;csusztatottzsalu-epitesu/11614478