Az értékesítő:
Kiss Katalin
+36 20 407 7144

Eladó családi ház Újszász, 59 990 000 Ft, 90 négyzetméter

59 990 000 Ft
családi ház, 90 négyzetméter
Építőanyag:
Könnyűszerkezetes
Egész szobák:
3
Komfort fokozat:
Összkomfort
Ingatlan állapota:
Kitűnő
Azonosító:
11614633
Értékesítés típusa:
eladó
Ingatlan típusa:
családi ház
Jelleg:
Ikerház
Település:
Újszász
Alapterület:
90
Telekterület:
300
Ár:
59 990 000 Ft
Erkély:
Van
Bútorozott:
Nem bútorozott
Telekterület típusa:
négyzetméter
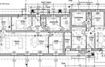
<p>A CasaNetWork Ingatlanhálózat kínálatában eladó épülő ikerházak Újszászon! <br />Az ingatlan hirdetési azonosítója: 174602302</p><p>A hirdetett lakás: A. lakás: fűtött lakótér: 80 nm + 18,58 nm terasz</p><p>A ház modern technológiával, kiváló minőségű, minősített anyagokból készül: </p><p>- falazata könnyűszerkezetes, fa szerkezetű. 15 cm-es fal, 15 cm hőszigeteléssel. Belső válaszfalak 10 cm vastagságúak. Így falazat kiváló hőszigetelő képességekkel rendelkezik, így télen-nyáron komfortos hőmérsékletet biztosít. A nyílászárók hő- és hangszigetelő műanyag ablakok, amelyek fokozzák az energiahatékonyságot, és kellemes belső klímát teremtenek.</p><p>Az ikerházakhoz saját kertrész és autóbeálló tartozik.</p><p>A fűtésről hőszivattyús fűtés gondoskodik padlófűtéssel. A nyári hőséget lakásonként 1 db inverteres klímaberendezés teszi elviselhetővé.</p><p>Ez az otthon minden műszaki és kényelmi igényt kielégít, amit a modern családi élet megkövetel.</p><h3>Főbb jellemzők:</h3><ul><li><p>Tágas belső tér: 2 szoba, nappali-konyha, fürdőszoba+Wc, külön WC, háztartási helyiség, előtér és terasz.</p></li><li><p>Minőségi burkolatok: Laminált parketta melegburkolatként, választható mintázattal. Hidegburkolat: padlólap, legfeljebb 6.000 Ft/m² értékben.</p></li><li><p>Modern nyílászárók: Műanyag ablakok hő- és hangszigetelő, 3 rétegű üvegezéssel, erkélyajtók – a lakás szellőztetése a tulajdonos feladata.</p></li><li><p>Felszerelt fürdő és konyha: Kád vagy tusoló, kézmosó a fürdőben, wc</p></li><li><p>Korszerű fűtési rendszer: hőszivattyús fűtés, padlófűtés és radiátoros fűtés kombinációja.</p></li><li><p>Klíma: Inverteres klímaberendezés a kellemes nyári hőmérsékletért.</p></li><li><p>Biztonságos bejárat: többpontos zárral ellátott biztonsági ajtó.</p></li><li><p>Energetikai besorolása: A++</p></li></ul><h3>Műszaki adatok:</h3><ul><li><p>Válaszfalak: 10- cm-es falazat </p></li><li><p>Tető: Azzurro betoncserép</p></li><li><p>Közművek: Gáz, víz, villany, csatorna</p></li></ul><p>Várható átadás: 2026 év vége<br />Az ingatlan műszaki tervei alapján hirdetjük meg. Kérjük, vegye figyelembe, hogy a használatbavételi engedély kiadását követően kisebb m²-eltérések előfordulhatnak.</p><p>Amennyiben a CasaNetWork Cegléd által kínált, 174602302 azonosítószámú ikerház, vagy bármely más ingatlan felkeltette érdeklődését, keressen bizalommal a megadott telefonszámon!<br /><em>Felhívjuk figyelmét, hogy a hirdetésben szereplő adatok a megbízótól származnak, azok pontosságáért felelősséget nem vállalunk.</em></p><p>Ügyfeleink részére díjmentes, bankfüggetlen hitelügyintézést biztosítunk! A 3%-os lakáshitelek elérhetőek! </p><p>CasaNetWork – Ingatlanban otthon vagyunk.</p>
https://ingatlanok.hu/elado/haz/ujszasz/60-millio-ft;90-negyzetmeter;3-szoba;nincs-megadva-futes/11614633