Az értékesítő:
Kresznóczki Ágnes
+36 20 312 6519

Eladó lakás Debrecen, 143 397 600 Ft, 96 négyzetméter

143 397 600 Ft
lakás, 96 négyzetméter
Építőanyag:
Tégla
Egész szobák:
5
Komfort fokozat:
Dupla komfort
Ingatlan állapota:
Kitűnő
Azonosító:
11615408
Értékesítés típusa:
eladó
Ingatlan típusa:
lakás
Település:
Debrecen
Alapterület:
96
Ár:
143 397 600 Ft
Fűtés jellege:
Hőszivattyú
Erkély:
Van
Erkély mérete:
6.00 m2
Kert mérete:
3.00 m2
Kertkapcsolat:
Nincs
Pince:
Nincs
Lift:
Nincs
Klíma:
Van
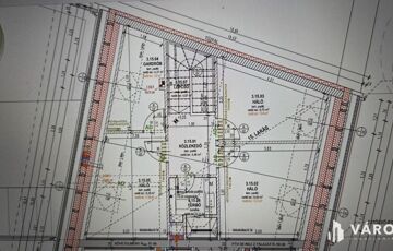
Szinte egyedülálló lehetőség a belvárosban! Emiatt gyors döntést igényel, hívj bátran, ne maradj le róla! 06 20 312 65 19 A társasház építése befejezés alatt áll, gyakorlatilag 1-2 hónapon belül használatbavételi engedély is lesz. 15 lakás+15 gépkocsibeálló+ 6 tároló került kialakításra. A héten is már 3 lakás elkelt, gyakorlatilag már csak 8 áll értékesítés alatt, gyors döntést igényel. A társasház 3 szintes, földszint: gépjárműbeálló+ tárolók, 1.2. szinten lakások vannak. Részletek: -A lakások bútorozva eladóak!!!!!! Előszoba szekrények, gépiesített konyhabútorok !!! étkező asztallal és székekkel, a tetőtérben hálószobabútorok lettek beépítve. -Hőszivattyús fűtési rendszer már működik. Padlófűtés van a lakásokban és légkondicionálókkal vannak a helyiségek felszerelve. -Elektromos autótöltési lehetőség van a földszinten a beállóknál. -Elektromos garázskapu, videokaputelefonnal egybekötött beléptetőrendszer van kiépítve, 1x32 A beteplálás lakásonként. - Riasztóralapvezetékelés kiépítve. -Jelenleg a végleges áram bekötését várják, és ezt követően tudják benyújtani a használatba vételi engedély iránti kérelmet. -A lakások akár már májussal, de legkésőbb a nyáron költözhetőek. **Főbb jellemzők:** - **Alapterület:** 96 m² (92,95 m2 lakás+6,58 m2 loggia) - **Szintek:** Belső szintes emeleti lakás egy 3 szintes épületben - **Szobák:** 4 hálószoba, gardrób szoba, 1 tágas nappali - **Fürdőszobák:** 2 modern fürdő, külön WC - **Konyha:** Amerikai stílusú, prémium anyagokkal és beépített bútorokkal - **Erkély:** Kényelmes erkély, ahol élvezheti a friss levegőt - **Fűtés:** Padlófűtés, klíma - **Közművek:** Háromfázisú áram, optikai internet kábel - **Extrák:** Elektromos autó töltő, levegő szellőztető rendszer, redőnyök - **Tárolás:** Beépített szekrények és gardrób, közös tároló - **Parkolás:** Udvari gépjárműbeálló lehetőség, tároló lehetőség - **Környezet:** Parkosított udvar kerti grillezőhellyel Az alacsony fenntartási költségeknek, a külső hőszigetelésnek és a modern technológiáknak köszönhetően ez az ingatlan ideális választás mind a családok, mind a befektetők számára. A közeli belváros és a kiváló közlekedési lehetőségek biztosítják, hogy mindig közel legyen minden fontos helyszínhez. Az alaprajz tájékoztató jellegű. További kérdések esetén vagy időpont egyeztetésére, keressen bizalommal! Ne hagyja ki ezt a páratlan lehetőséget Debrecen szívében! Akár hétvégén is! 06 20 312 65 19 Kresznóczki Ágnes (További képekért és információkért kérem hívjon!)
https://ingatlanok.hu/elado/lakas/debrecen/143-millio-ft;96-negyzetmeter;5-szoba;tegla-epitesu/11615408