Az értékesítő:
Horváth Péter
+36 70 606 2990

Eladó családi ház Budapest XVII. ker, 169 990 000 Ft, 159 négyzetméter

169 990 000 Ft
családi ház, 159 négyzetméter
Építőanyag:
Tégla
Egész szobák:
5
Komfort fokozat:
Dupla komfort
Fűtés módja:
Hőszivattyú
Ingatlan állapota:
Kitűnő
Azonosító:
11615436
Értékesítés típusa:
eladó
Ingatlan típusa:
családi ház
Jelleg:
Családi ház
Település:
Budapest XVII. ker
Alapterület:
159
Telekterület:
641
Ár:
169 990 000 Ft
Szintek száma:
Földszintes
Fűtés jellege:
Geotermikus
Kor:
1-5 éves
Terasz:
Van
Pince:
Nincs
Telekterület típusa:
négyzetméter
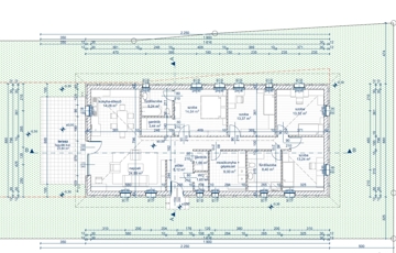
A XVII. kerület csendes, családi házas övezetében, az Emlék utca 58. szám alatt kínálom megvételre ezt a 641 m²-es telekre épülő, nettó 147 m²-es, modern és energiatakarékos új építésű családi házat, amelyhez egy 23,8 m²-es terasz is tartozik. A kivitelezést megbízható, több sikeres referenciával rendelkező kivitelező cég végzi, az ingatlan pedig kulcsrakészen kerül átadásra. A ház praktikus elrendezésének köszönhetően négy külön nyíló szoba és egy tágas amerikai konyhás nappali biztosítja a kényelmes mindennapokat, miközben a korszerű műszaki tartalom alacsony fenntartási költségeket garantál. Az épület Porotherm 30-as tégla falazattal, 14 cm-es grafitos homlokzati szigeteléssel és 30 cm vastag tetőszigeteléssel készül. A fűtést és a melegvizet 12 kW-os hőszivattyú biztosítja, a teljes ingatlanban padlófűtéssel, míg a hűtést fancoil egységek látják el. A háromrétegű fehér nyílászárók motoros redőnnyel szerelve kerülnek beépítésre. A belső burkolatok és szaniterek választhatók: -csempe 8.000 Ft-ig 180 cm-es magasságig, a fölött 12.000 Ft/m² -fürdők padlóburkolata 8.000 Ft/m²-ig -minden helyiség parkettaburkolattal, alátéttel és szegéllyel 5.000 Ft/m²-ig -terasz burkolata 4.000 Ft/m²-ig -szaniterek összeghatára 350.000 Ft. Ez az ingatlan ideális választás mindazok számára, akik egy modern, praktikusan kialakított, magas műszaki tartalmú, alacsony üzemeltetési költségű, új építésű családi házra vágynak egy kiválóan megközelíthető, mégis nyugodt környéken. INGYENES hitel tanácsadás, CSOK Plusz - Otthon Start ügyintézés! BANKFÜGGETLEN hitelcentrumunk az összes elérhető bank és hitelintézet ajánlatát versenyezteti az Ön kedvéért, ráadásul DÍJMENTESEN. - Egyedi, bankfiókban nem elérhető kamat- és díjkedvezmények - Hitelképesség vizsgálat - Idő, energia és pénz megtakarítás - Teljes hivatali ügyintézés Amennyiben hirdetésem felkeltette az érdeklődését vagy egyéb információra van szüksége hívjon bizalommal!
https://ingatlanok.hu/elado/haz/budapest-xvii-ker/170-millio-ft;159-negyzetmeter;5-szoba;geotermikus-futes/11615436