Az értékesítő:
Takács Adrienn
+36 20 349 8022

Eladó lakás Alsópáhok, 67 900 000 Ft, 72 négyzetméter

67 900 000 Ft
lakás, 72 négyzetméter
Építőanyag:
Tégla
Egész szobák:
3
Komfort fokozat:
Összkomfort
Ingatlan állapota:
Átlagos
Azonosító:
11615497
Értékesítés típusa:
eladó
Ingatlan típusa:
lakás
Település:
Alsópáhok
Alapterület:
72
Ár:
67 900 000 Ft
Emelet:
Földszint
Fűtés jellege:
Cirkó
Kilátás:
udvari
Építési év:
1-5 éves
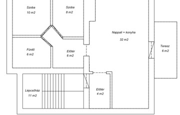
Emeleti elhelyezkedés: Földszinten Épület emeleteinek száma: 1 Állapota: átlagos Komfort besorolása: összkomfortos Építési éve: 2016 Alapterülete: 72 m2 Szobák száma: 3szoba Vízellátás: Vezetékes víz Fűtés módja: Gáz Fűtés típusa: Cirkó Homlokzat állapot: átlagos Építési mód: Tégla Kilátás: Udvari kilátás Napelem: Van Energetikai besorolás: Nincs adat <br>Extrák: Különnyíló szobák, Amerikai konyha, Lift, Terasz<br>Panorámás, erkélyes lakás Alsópáhok csendes lakóparkjában! Alsópáhok zöldövezeti, nyugodt részén, kapuval zárt, gondozott lakóparkban kínálok eladásra egy 72 m²-es, első emeleti, panorámás lakást, amelyhez saját parkolóhely is tartozik. Az épületben mindössze két lakás található, így garantált a csendes, privát környezet. A világos, amerikai konyhás nappalihoz egy 6 m²-es panorámás erkély kapcsolódik, ahonnan szép kilátás nyílik a környékre. A nappali klímával felszerelt, így minden évszakban kellemes hőmérséklet biztosított. Két külön nyíló hálószoba és egy zuhanyzós, WC-s fürdőszoba teszi teljessé az elrendezést. Felszereltség: Vaillant gázcirkó fűtés Klíma a nappaliban Hőszigetelt fa nyílászárók, redőnnyel és szúnyoghálóval Elhelyezkedés: Hévízi-tó kb. 5 perc, Balaton (Keszthely) és repülőtér kb. 15 perc autóval. Tökéletes választás állandó otthonnak vagy nyaralónak, azoknak, akik a nyugalmat és a minőségi környezetet keresik! Hívjon bizalommal, és tekintsük meg együtt ezt az igényes, panorámás lakást! +36 20 349 8022
https://ingatlanok.hu/elado/lakas/alsopahok/68-millio-ft;72-negyzetmeter;3-szoba;tegla-epitesu/11615497