Az értékesítő:
Csörnyei Tamás
+36 20 996 6669

Kiadó ipari ingatlan Győr, 1 490 000 Ft/hónap+ÁFA, 714 négyzetméter

1 490 000 Ft/hónap+ÁFA
ipari ingatlan, 714 négyzetméter
Ingatlan állapota:
Átlagos
Azonosító:
11615808
Értékesítés típusa:
kiadó
Ingatlan típusa:
ipari ingatlan
Jelleg:
Egyéb
Település:
Győr
Alapterület:
714
Ár:
1 490 000 Ft/hónap+ÁFA
Telekterület típusa:
Négyzetméter
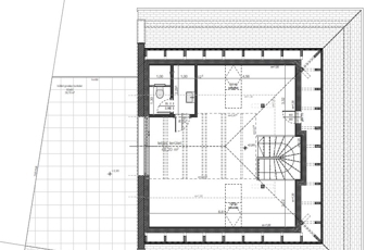
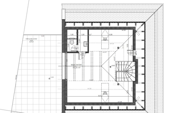
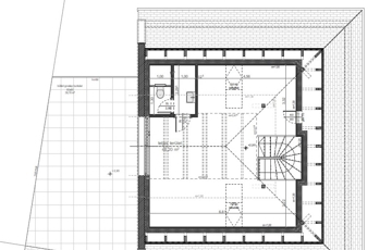
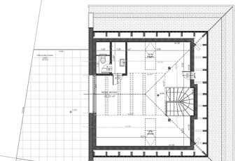
Győr-Szabadhegyen kiadó egy 714 m²-es ipari ingatlan, 3000 m²-es telken. A raktárcsarnok 4 m tiszta, 6,7 m csúcsmagasságú, padlója 5 t/m² terhelhető. 3x32 A áramkapacitás, kapuk: 4x3 m és 3x3 m. Bérleti díj: 1.490.000 Ft/hó + rezsi, 3 havi kaució. Kiváló autópálya eléréssel! Érd.: +36-20/9-966-669 Győr-Szabadhegyen, közvetlen az ipari övezetben, kiadó egy 714 m²-es ipari ingatlan, 3000 m²-es telken. Az ingatlan két szinten elhelyezkedő, klimatizált 167 m² irodát és szociális felületet, 52 m² fűtött műhelyt, 353 m² fűtetlen raktárt és 96 m² sátrat foglal magába. Az emeleti iroda felülethez tartozik egy 38 m² tető terasz. A raktárcsarnok tiszta magassága 4 m, csúcsmagassága 6,7 m, padló terhelhetősége 5 t/m². A bejárat egy 4x3 m-es és egy 3x3 m-es kapun keresztül lehetséges. Áramkapacitás: 3x32 A. Bérleti díj: 1.490.000 Ft/hó + rezsi, 3 havi kaució. Ideális raktározásra, irodai és gyártási tevékenységre, autópálya-közelben! English: In Győr-Szabadhegy’s industrial zone, a 714 m² industrial property is for rent on a 3000 m² plot. The property includes 167 m² of office space, 52 m² heated workshop, 353 m² unheated warehouse, and a 96 m² tent. The office is two-story with a 38 m² terrace. The warehouse hall has a clear height of 4 m and a peak height of 6.7 m, with a floor load capacity of 5 tons/m². Access is provided via a 4x3 m and a 3x3 m gate. Power capacity is 3x32 A. Rent: 1,490,000 HUF/month + utilities, with a 3-month deposit. Ideal for warehousing, office, or production, near the highway!
https://ingatlanok.hu/kiado/ipari_ingatlan/gyor/1-millio-ft;714-negyzetmeter;egyeb-jellegu;nincs-megadva-tulajdonviszony/11615808