Kiadó családi ház Hódmezővásárhely 600 000 Ft

Leírás

Kiadó ~238,00 m2 alapterületű családi ház Hódmezővásárhelyen a Nyikos utcában.
A 2005.- ben épült épület egyedi megoldásokkal és gazdaságos fenntarthatósággal várja új lakóit.
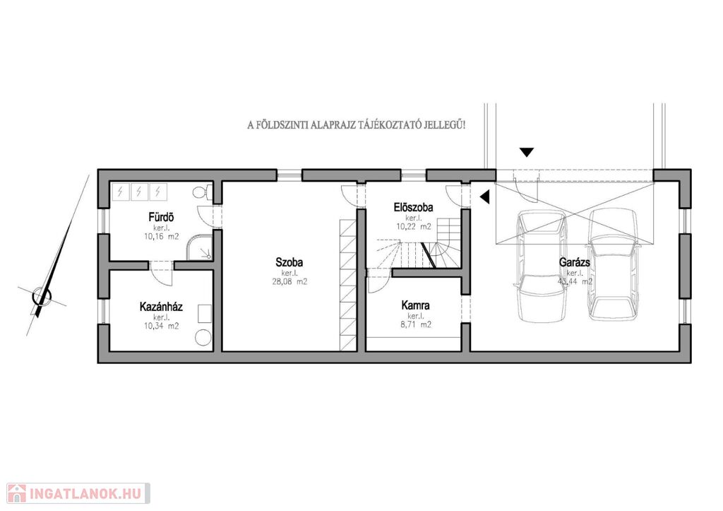
A telek tereprendezése lehetővé teszi, hogy az utcafrontról a garázs és az ebből nyíló előszoba (lépcsőház), klub-szoba, fürdő, kamra és kazán helyiségek közelíthetőek meg. Az „emeleti” lakótér kültéri és beltéri lépcsővel is elérhető. (lásd.: alaprajzok)
Hőszigetelt, szúnyoghálóval ellátott, egyedi gyártású fa kültéri nyílászáróknak köszönhetően világos, elegáns lakóterek kapcsolódnak egymáshoz, ebben a sajátos dinamikájú házban.
Tágas Nappali és Étkező helyiségben helyett kapott egy látvány-kandalló, innen nyílik a beépített teljesen felszerelt Konyha és a Dolgozó-szoba. Ezen a szinten lévő három hálószobához saját fürdőszoba tartozik. A Téli-kert a Dolgozó-szobából és a teraszról is megközelíthető. Az ~58,00 m2 fedett, burkolt terasz - kültéri sütögetővel - növeli a lakótér kihasználhatóságát. A kétállásos garázs ~ 44,00 m2. Központi fűtést egy Buderus Logano G 124 kazán -csökkentett káros-anyag kibocsátású, teljesen automatikus üzemű -biztosítja.
Az épülete villamos energia ellátását 30 napelem támogatja.
Az épület riasztórendszerrel és kamerával védett.
Az ingatlan a Kása erdő közvetlen közelébe helyezkedik el, szép környezetben, kiépített túraútvonalak pár perces sétával elérhetőek az erdőben. Autóval szeged 25 perc alatt elérhető, Szegedi BYD-gyár ugyancsak 25 perc autóval.Hódmezővásárhely belváros 6 perc autóval.
Elsősorban hosszú távra, teljes bútorzattal, nem dohányzó lakóknak szeretnénk kiadni a házat, 2 havi kaució megfizetése szerződéskötéskor szükséges. A felmerülő rezsi költségek a bérlőt terhelik.

Néhány információ az ingatlanról, ami segíthet a döntésben:
- Telek: 1394 m2
- Hasznos lakótér: ~238,00 m2
- Földszint: ~ 67,50m2 + ~43,40 m2 Garázs
- Emelet: ~170,30 m2 + ~18,00 Télikert + ~58,50 m2 Fedett terasz
- Nappali és Étkező: ~55,00m2
- Konyha: ~15,00 m2
- Dolgozó-Szoba: ~17,00 m2
- Szobák: ~15,00 m2; ~14,00 m2; ~12,00 m2

Az ingatlannal kapcsolatos kérdéseivel várom hívását, a hét bármely napján.
(További képekért és információkért kérem hívjon!)

Családi ház részletei

Ár: 600 000 Ft/hónap
Méret: 238 négyzetméter
Azonosító: 11592169
Irodai azonosító: 181381
Telek: 1394 négyzetméter
Ingatlan állapota: Kitűnő
Jelleg: családi ház
Építőanyag: Tégla
Fűtés jellege: Cirkó
Egész szobák: 5
Nappalik: 1

Egyéb jellemzők

  • Beépíthető tetőtér
  • Csatorna
  • Garázs
  • Melléképület
  • Pince
  • Terasz