Eladó családi ház Budapest XXII. ker 163 000 000 Ft

Leírás

A XXII. kerület legkedveltebb részén, DUNATELEPEN családiház eladó.
Az utca végén Duna part, Kis-Háros sziget, természetvédelmi terület, lovarda, kajak-kenu egyesület és SUP kölcsönzési lehetőség!
Eladásra kínálok egy nettó 242m2-es két szintes családi házat, melyben jelenleg három különálló lakás van kialakítva. A 724m2-es telken a házon felül fedett sütögető hely, tárolók, és mászóka is található.
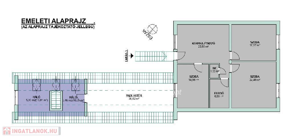
Az épületen belül a három lakás a mellékelt alaprajz szerint helyezkedik el. Az 1. lakás 122m2, a 2. lakás, ami két szintes nettó 35m2-es, a 3. lakás pedig 86m2-es.
A fűtést automata váltókapcsolóval ellátott gáz cirko-, vagy vegyestüzelésű kazán biztosítja.
Az épület szigetelt, 2005-ben teljeskörűen felújították, azóta is folyamatosan karbantartják.
A parkolás a telken belül, és az utcán is lehetséges. Az utca zsákutca, átmenő forgalomtól mentes.
Lke-2/D/1-es övezeti besorolás alapján a telek 20%-os beépíthetőségi, 50% zöldterületi mutató, és 6 m-es építménymagassági maximummal rendelkezik.

Dunatelep lakó pihenő övezet, a lakók összetartóak, utcabálokat szerveznek, saját facebook csoportban segítik egymást. A Covid óta ez a legkedveltebb része a kerületnek.
Az ingatlan közvetlen közelében helyezkedik el a Dunapart ABC, mely élelmiszer kiskereskedés. 800m-re pedig két élelmiszer áruházlánci egység is elérhető (ALDI, LIDL). Bevásárló központ két kilométerre található, ahol a közműszolgáltatók, telefontársaságok kirendeltségein kívül posta, gyógyszertár, fodrász, fitnesz-terem, benzinkút is megtalálható (CAMPONA Bevásárló Központ)
Háziorvosi rendelő, bölcsőde, óvoda, iskola, 1 km távolságra.
A közelben éjszakai és nappali BKV járatok, agglomeráció felé közlekedő távolsági buszok megállói, és vasútállomás is található, a part mentén kerékpárút vezet, melyen szintén elérhetjük a belvárost.
Az ingatlan CSOK+-ra alkalmas, és a kiadható lakások a törlesztő részleteket is bőven fedezik.
Ne szalassza el ezt a lehetőséget.
Igény szerint hitelügyintézést, ügyvédi közreműködést biztosítunk, és segítséget nyújtunk az adásvétel folyamatának intézéséhez.
Otthon Start Hitelprogram

Amennyiben érdekli az ingatlan, vagy további kérdései vannak, hívjon telefonon kérem.

Családi ház részletei

Ár: 163 000 000 Ft
Méret: 242 négyzetméter
Azonosító: 11575738
Irodai azonosító: M298131-5073927
Telek: 728 négyzetméter
Ingatlan állapota:
Jelleg: családi ház
Építőanyag: Tégla
Fűtés jellege: Cirkó
Fűtés módja: Gáz
Komfort fokozat: Összkomfort
Kor: 50 évesnél régebbi
Szintek száma: 1 szint
Egész szobák: 9
Fél szobák: 2

Egyéb jellemzők

  • Garázs

Térkép

Hasonló családi ház hirdetések

Eladó családi ház

Budapest XXII. ker

Zöldövezeti nyugalom a város peremén – felújított családi ház Rózsavölgy ...

Eladó családi ház

Budapest XXII. ker

MODERN, HŐSZIVATTYÚS, ÚJÉPÍTÉSŰ, KULCSRAKÉSZ IKERHÁZ  zöld környezetben. XXII. ...

Eladó családi ház

Budapest XXII. ker

Ajánlom szíves figyelmébe ezt az azonnal költözhető, korszerű és elegáns ...

Eladó családi ház

Budapest XXII. ker, Budafok

Eladó a XXII. kerület Tegzes közben egy három szintes ikerház! A ház ...

Hasonló családi ház hirdetések

Eladó családi ház

Budapest XXII. ker

Zöldövezeti nyugalom a város peremén – felújított családi ház Rózsavölgy ...

Eladó családi ház

Budapest XXII. ker

MODERN, HŐSZIVATTYÚS, ÚJÉPÍTÉSŰ, KULCSRAKÉSZ IKERHÁZ  zöld környezetben. XXII. ...

Eladó családi ház

Budapest XXII. ker

Ajánlom szíves figyelmébe ezt az azonnal költözhető, korszerű és elegáns ...

Eladó családi ház

Budapest XXII. ker, Budafok

Eladó a XXII. kerület Tegzes közben egy három szintes ikerház! A ház ...