Eladó családi ház Érd 114 000 000 Ft

Leírás

Csend és nyugalom Érdliget szívében – két generáció számára is ideális családi ház!

Érdligeten, egy csendes és barátságos környéken vár rád ez a 2000-ben épült, remek állapotú, önálló családi ház, amely akár két generációnak is kényelmes otthont nyújthat. Az 557 m²-es telken fekvő ingatlan nettó 177 m² hasznos alapterületével bőséges helyet biztosít mindenki számára.

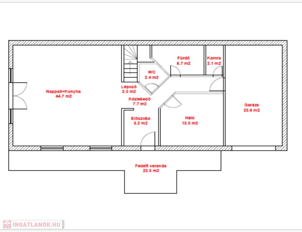
A földszinten egy tágas és világos átriumos nappali található, amely egybe van nyitva a konyhával, így tökéletes tér a közös családi időtöltéshez. Emellett itt kapott helyet egy hálószoba, egy fürdőszoba, valamint egy külön wc. A nappali nagy teraszajtaja elektromos redőnnyel van felszerelve, így a kényelem is garantált. Az egy autó számára elegendő garázs szintén elektromos ajtóval rendelkezik, ami még praktikusabbá teszi a mindennapokat.

Az emeletre felérve a galériáról letekinthetsz a nappalira, ami igazán impozáns, hiszen a belmagasság itt eléri a 6 métert. Ezen a szinten egy második nappali is található konyhával, három hálószobával és egy fürdőszobával, így a fenti lakrész akár önálló lakásként is használható. A melegvíz ellátásról itt egy villanybojler gondoskodik, míg a földszinten egy kombi gázkazán biztosítja a komfortot.

Az ingatlan modern építési megoldásokkal készült: a 30-as Porotherm téglából épült ház hőszigetelő nemesvakolattal és 15 cm Isolith szigeteléssel van ellátva a tetőtérben, így télen is remek hőmegtartó képességgel rendelkezik. A fűtést radiátoros hőleadással a gázkazán biztosítja.

Az elhelyezkedés kiváló: a közelben megtalálod a Napsugár óvodát, Spar áruházat, és a buszmegálló is csak néhány perc séta. Érd városközpontja és a vasútállomás autóval mindössze 10 perc alatt elérhető, így minden fontos helyszín könnyen megközelíthető.

Az ingatlan per-, teher-, és igénymentes, és ha hitelre lenne szükséged, abban is örömmel segítünk!

Ne habozz, keress minket bizalommal a megtekintésért!

Családi ház részletei

Ár: 114 000 000 Ft
Méret: 177 négyzetméter
Azonosító: 11418196
Irodai azonosító: H489771
Telek: 557 négyzetméter
Ingatlan állapota:
Jelleg: családi ház
Építőanyag: Tégla
Fűtés jellege: Cirkó
Fűtés módja: Gáz
Szintek száma: 2 szint
Egész szobák: 6

Egyéb jellemzők

  • Garázs
  • Terasz

Hasonló családi ház hirdetések

Eladó családi ház

Érd

DOMBOSVÁROSBAN, ÖNÁLLÓ CSALÁDIHÁZ, KIVÁLÓ INFRASTRUKTÚRÁVAL, NAGY ...

Eladó családi ház

Érd

ÉRD TUSCULANUM részén eladó tágas, 3 szintes családi ház eladó! Eladásra ...

Eladó családi ház

Érd

ÉRTÉKÁLLÓ, STABIL PONT ÉLJEN CSALÁDJÁVAL ÉRDEN, TERVEZZEN HOSSZÚTÁVRA!Eladó ...

Eladó családi ház

Érd

Kedves Ingatlankereső! Ha Érden szeretne élni, és természetközeli nyugalomra ...

Hasonló családi ház hirdetések

Eladó családi ház

Érd

DOMBOSVÁROSBAN, ÖNÁLLÓ CSALÁDIHÁZ, KIVÁLÓ INFRASTRUKTÚRÁVAL, NAGY ...

Eladó családi ház

Érd

ÉRD TUSCULANUM részén eladó tágas, 3 szintes családi ház eladó! Eladásra ...

Eladó családi ház

Érd

ÉRTÉKÁLLÓ, STABIL PONT ÉLJEN CSALÁDJÁVAL ÉRDEN, TERVEZZEN HOSSZÚTÁVRA!Eladó ...

Eladó családi ház

Érd

Kedves Ingatlankereső! Ha Érden szeretne élni, és természetközeli nyugalomra ...