Eladó családi ház Görcsöny 98 000 000 Ft

Leírás

**KIVÉTELES LEHETŐSÉG GÖRCSÖNYBEN – PRÉMIUM MINŐSÉGŰ ÚJ ÉPÍTÉSŰ HÁZ ELADÓ!**

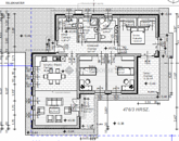
**Eladó egy szintes családi ház** 134 m² lakótérrel, 995 m²-es telken, **kiváló műszaki tartalommal**, ideális családok számára!

* **Tágas, modern amerikai konyha + nappali**, 3 külön nyíló hálószoba, 2 gardrób
* **Kiváló energiahatékonyság:** hőszivattyús fűtésrendszer, padlófűtéssel
* **Klimatizált** otthon a legnagyobb kényelmet biztosítja!
* **2 terasz**, parkosított kerttel, egyedi igények szerint kialakítható
* **A projekt előfinanszírozással is megvásárolható**, így lehetőséged van a személyre szabott belső kialakításra: választhatsz burkolatokat, színeket, vagy akár alaprajzi módosításokat is.

**Főbb jellemzők:**

* **Kiváló minőségű anyagok**: Wienerberger Porotherm 30 N+F tégla, 15 cm-es grafitos hőszigetelés
* **Hőszivattyús fűtés, padlófűtéssel** - alacsony fenntartási költségek
* **Saját kertkapcsolat** 3 lakáshoz
* **Belső kialakítás még módosítható**: egyedi igények szerint választhatók burkolatok, szaniterek

**Átadás**: 2026 őszén
**CSOK és egyéb állami támogatások igénybe vehetők!**

Ne hagyd ki ezt a ritka lehetőséget, hogy egy prémium, energetikailag és kényelmi szempontból is tökéletes otthonra lelj! Tedd még személyre szabottabbá a saját ízlésed szerint!

98000000 Ft
Keressenek Bizalommal!
Érdeklődni.: Orsolics Zsolt + 36(20)3770000

Referencia szám: HZ020576-NOK

Családi ház részletei

Ár: 98 000 000 Ft
Méret: 134 négyzetméter
Azonosító: 11573199
Irodai azonosító: HZ020576-5064638
Telek: 995 négyzetméter
Összesített energetikai besorolás: A+
Ingatlan állapota: Épülő
Jelleg: családi ház
Építőanyag: Tégla
Fűtés jellege: Villany
Fűtés módja: Hőszivattyú
Komfort fokozat: Összkomfort
Kor: Új építésű
Szintek száma: Földszintes
Egész szobák: 4

Egyéb jellemzők

  • Garázs

Térkép

Hasonló családi ház hirdetések

Eladó családi ház

Görcsöny

EGYEDI LEHETŐSÉG, KIEMELT MŰSZAKI TARTALOM!!! Görcsönyben eladó 134 nm-es ...

Eladó családi ház

Görcsöny

EGYEDI LEHETŐSÉG, KIEMELT MŰSZAKI TARTALOM!!! Görcsönyben eladó 134 nm-es ...

Eladó családi ház

Görcsöny

EGYEDI LEHETŐSÉG, KIEMELT MŰSZAKI TARTALOM!!! Görcsönyben eladó 134 nm-es ...

Eladó családi ház

Görcsöny

EGYEDI LEHETŐSÉG, KIEMELT MŰSZAKI TARTALOM!!! Görcsönyben eladó 134 nm-es ...

Hasonló családi ház hirdetések

Eladó családi ház

Görcsöny

EGYEDI LEHETŐSÉG, KIEMELT MŰSZAKI TARTALOM!!! Görcsönyben eladó 134 nm-es ...

Eladó családi ház

Görcsöny

EGYEDI LEHETŐSÉG, KIEMELT MŰSZAKI TARTALOM!!! Görcsönyben eladó 134 nm-es ...

Eladó családi ház

Görcsöny

EGYEDI LEHETŐSÉG, KIEMELT MŰSZAKI TARTALOM!!! Görcsönyben eladó 134 nm-es ...

Eladó családi ház

Görcsöny

EGYEDI LEHETŐSÉG, KIEMELT MŰSZAKI TARTALOM!!! Görcsönyben eladó 134 nm-es ...