Eladó családi ház Gyál 130 000 000 Ft

Leírás

PRÉMIUM ÚJ ÉPÍTÉSŰ CSALÁDI HÁZ GYÁL KÖZPONTI, MÉGIS CSENDES RÉSZÉN

Gyál központi elhelyezkedésű, mégis nyugodt mellékutcájában kínálunk eladásra egy kimagasló műszaki tartalommal és egyedi stílussal megvalósuló, új építésű, földszintes családi házat, amely a modern otthon minden elvárásának megfelel.

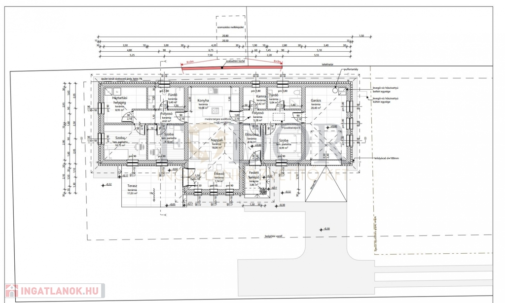
Az ingatlan 131 m²-es bruttó alapterülettel rendelkezik, elrendezése egy tágas, világos amerikai konyhás nappali + 4 hálószoba, valamint két fürdőszoba, mely ideális választás nagyobb családok számára is.
A hasznos lakótér 120,87 m², továbbá 20,40 m²-es garázs–tároló, valamint 17,03 m²-es terasz szolgálja a kényelmet.
A ház kivitelezése során a maximalizmus, precizitás és tudatos tervezés állt a középpontban. A leendő tulajdonos igényeihez igazodva a kivitelező számos részletet rugalmasan alakít. Referencia házak megtekinthetőek.

Telek és környezet
Az ingatlan 620 m²-es, teljesen privát telekterületen helyezkedik el, családi házas övezetben, aszfaltozott utcában, barátságos szomszédsággal. A nyeles telken az épület az udvari részen kap helyet, míg az utcafronton egy teljeskörűen felújított családi ház található – ez maximális intimitást biztosít.
A kert ideális családi összejövetelekhez, pihenéshez és aktív kikapcsolódáshoz.

Műszaki tartalom – kompromisszumok nélkül
Az otthon fűtéséről és melegvíz-ellátásáról prémium kategóriás Daikin levegő–víz hőszivattyú gondoskodik, melyet padlófűtés, mennyezeti hűtés-fűtés, valamint a fürdőszobákban törölközőszárítós radiátorok egészítenek ki.

Főbb szerkezeti jellemzők:
• 30 cm-es tégla főfalak, 10 cm-es válaszfalak
• 10 cm lábazati szigetelés
• 12 cm homlokzati hőszigetelés
• 10 cm aljzatszigetelés
• 30 cm födémszigetelés
• Bramac vagy Terrán sötétbarna cserépfedés

Alapárban benne foglalt extrák:
• Napelem előkészítés
• Elektromos kapu előkészítés
• Motoros, hő- és hangszigetelt szekcionált garázskapu
• 1 db inverteres hűtő-fűtő klíma
• Teljes riasztórendszer kezelőegységgel
• Külső-belső fehér műanyag nyílászárók, 3 rétegű üvegezéssel,
elektromos alumínium redőnyökkel
• Daikin levegő–víz hőszivattyú 210 literes puffertartállyal
• Viacolor térkő: személyi- és gépkocsibejáró, valamint a ház körül

Kulcsrakész megoldás
A hirdetésben szereplő vételár kulcsrakész állapotra vonatkozik.
A burkolatok, beltéri ajtók, szaniterek, valamint a kivitelezés adott fázisában a homlokzati szín is választható.

Várható átadás: 2026. II. negyedév

Infrastrukturális adottságok
A környék infrastruktúrája kiváló: iskola, óvoda, bevásárlási lehetőségek és tömegközlekedés mindössze néhány perc sétára elérhetők.

Irodánk díjmentes hitelügyintézést, személyre szabott tanácsadást, valamint az ÚJ CSOK program teljes körű ügyintézését is biztosítja ügyfelei számára.
További információért és részletes műszaki tartalomért keressen bizalommal!

Családi ház részletei

Ár: 130 000 000 Ft
Méret: 131 négyzetméter
Azonosító: 11592138
Irodai azonosító: 347711
Telek: 620 négyzetméter
Ingatlan állapota: Kitűnő
Jelleg: családi ház
Építőanyag: Tégla
Komfort fokozat: Összkomfort
Kor: Új építésű
Egész szobák: 5

Egyéb jellemzők

  • Garázs
  • Terasz

Hasonló családi ház hirdetések

Eladó családi ház

Gyál

Egyedi hangulatú családi ház Gyál szívében – ahol ...

Eladó családi ház

Gyál

Eladó azonnal költözhető családi ház Gyálon – Kényelem és Prémium ...

Eladó családi ház

Gyál

ELADÓ ÚJ ÉPÍTÉSŰ, MODERN IKERHÁZ GyÁLON – PRÉMIUM MINŐSÉG, MAGAS ...

Eladó családi ház

Gyál

IGAZI KIS GYÖNGYSZEM GYÁL SZÍVÉBEN – TELJESKÖRŰEN FELÚJÍTOTT, MESEBE ...

Hasonló családi ház hirdetések

Eladó családi ház

Gyál

Egyedi hangulatú családi ház Gyál szívében – ahol ...

Eladó családi ház

Gyál

Eladó azonnal költözhető családi ház Gyálon – Kényelem és Prémium ...

Eladó családi ház

Gyál

ELADÓ ÚJ ÉPÍTÉSŰ, MODERN IKERHÁZ GyÁLON – PRÉMIUM MINŐSÉG, MAGAS ...

Eladó családi ház

Gyál

IGAZI KIS GYÖNGYSZEM GYÁL SZÍVÉBEN – TELJESKÖRŰEN FELÚJÍTOTT, MESEBE ...