Eladó családi ház Gyula 69 000 000 Ft

Leírás

Eladó családi ház Gyula városának kedvelt Újváros városrészében!

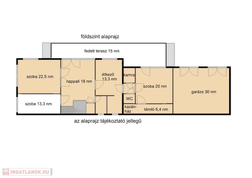
Ez a 150 m²-es lakótérrel rendelkező, átlagos állapotú ingatlan ideális választás mindazok számára, akik csendes környezetben szeretnének élni, ugyanakkor fontos számukra a jó közlekedés. A házban 4 tágas szoba, egy világos nappali, étkezős konyha, kamra valamint 2 fürdőszoba és két különálló mosdó is helyet kapott, így kényelmes otthont biztosít nagyobb családoknak is. Emellett a főépület hátsó szekciójában egy nagy alapterületű a kertből akár külön megközelíthető helyiség is található, mely alkalmas lakhatásra, de akár vállalkozás (körmös, fodrász, műhely stb) céljára is tökéletes.

A ház fűtéséről a főépület földszintjén gázkazánról működtetett radiátorok gondoskodnak, az emeleten és a hátsó részben konvektor fűtés került kialakításra.

A 447 m²-es telek számos lehetőséget kínál a kertészkedés szerelmeseinek, ráadásul fúrt kút is rendelkezésre áll a kert öntözéséhez. A redőnyözött ablakok és a külön fürdő és WC tovább növelik a lakók kényelmét. A házhoz egy hangulatos, déli fekvésű terasz is tartozik, amely tökéletes hely a pihenéshez.

A kertkapcsolatos kialakítás lehetővé teszi, hogy bármikor élvezhesse a friss levegőt és a kert nyugalmát. A garázs lehetőség pedig biztosítja autója biztonságos tárolását. A kertben ezek mellett két könnyűszerkezetes szerszámtároló is található.

Ez a ház tökéletes nagycsaládosoknak, hiszen itt mindenkinek jut elég élettér és Otthon Start programra és CSOK+-ra is alkalmas. Déli fekvésének köszönhetően a nappali és az étkező egésznap fényárban úszik. Nagyon jó lokációjának köszönhetően apartmanozás céljára is megfelelő.

Ne hagyja ki ezt a remek lehetőséget, hogy saját igényei szerint alakítsa ki álmai otthonát Gyula Újváros városrészének egyik csendes utcájában!

További információért és a megtekintés időpontjának egyeztetéséért keressen bennünket bizalommal!
(További képekért és információkért kérem hívjon!)

Családi ház részletei

Ár: 69 000 000 Ft
Méret: 150 négyzetméter
Azonosító: 11605721
Irodai azonosító: 090566
Telek: 447 négyzetméter
Ingatlan állapota: Átlagos
Jelleg: családi ház
Építőanyag: Tégla
Fűtés jellege: Cirkó
Egész szobák: 5
Fél szobák: 2
Nappalik: 1

Egyéb jellemzők

  • Beépíthető tetőtér
  • Csatorna
  • Garázs
  • Melléképület
  • Pince
  • Terasz

Hasonló családi ház hirdetések

Eladó családi ház

Gyula

Gyula kedvelt városrészén, az Újvárosban eladóvá vált egy 95 nm alapterületű ...

Eladó családi ház

Gyula

6 szobás családi ház a paradicsomban! Gyula fürdővárosának egyik ...

Eladó családi ház

Gyula

Eladásra kínálok egy 1995-ben téglából épült, jó állapotú családi ...

Eladó családi ház

Gyula

Eladó Sorház Gyula Újvári városrész - Prémium Minőség, Kiváló Elhelyezkedés Szeretne ...

Hasonló családi ház hirdetések

Eladó családi ház

Gyula

Gyula kedvelt városrészén, az Újvárosban eladóvá vált egy 95 nm alapterületű ...

Eladó családi ház

Gyula

6 szobás családi ház a paradicsomban! Gyula fürdővárosának egyik ...

Eladó családi ház

Gyula

Eladásra kínálok egy 1995-ben téglából épült, jó állapotú családi ...

Eladó családi ház

Gyula

Eladó Sorház Gyula Újvári városrész - Prémium Minőség, Kiváló Elhelyezkedés Szeretne ...