Eladásra kínálok Őrbottyán csendes, kertvárosias részén, egy felújított családi házat, amely mellett az udvarban egy különálló összkomfortos egy szobás ház is van.
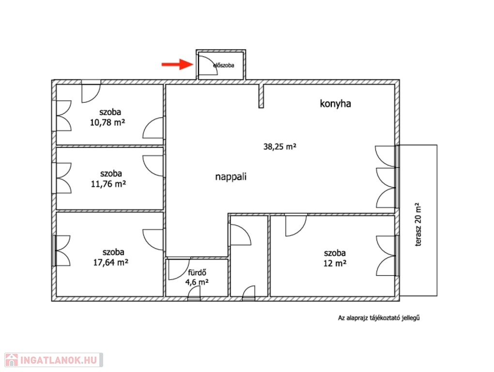
Főház: 4 hálószoba, amerikai konyhás nappali, 2 fürőszoba, előtér, 20 nm fedett terasz.
Melléképület: hálószobaszoba, amerikai konyhás nappali, fürdőszoba, 10 nm terasz.
Telek méret: 1371 nm.
A kert rendezett, növényzettel beültetett.
Fűtés: hőszívattyús, H tarifa kiépítve, hűtő fűtő klímák felszerelve.
Napelem 8 kw, így alacsony rezsi biztosítva.
Műanyag 3 rétegű nyílászárók.
Manuális nagykapu.
A főházban az eredeti belmagasság 3 méter, amely álmennyezettel jelenleg 276 cm-re van lehozva.
A melléképületben a belmagasság 220 cm.
Főépületben száraz, tárolásra használt pince van, amely 30 nm alapterületű.
Hívjon bizalommal, tekintsük meg együtt!
| Ár: | 118 000 000 Ft |
| Méret: | 120 négyzetméter |
| Azonosító: | 11592559 |
| Irodai azonosító: | 391606 |
| Cím: | Erdősor utca |
| Telek: | 1371 négyzetméter |
| Ingatlan állapota: | Felújított |
| Jelleg: | családi ház |
| Építőanyag: | Tégla |
| Fűtés jellege: | Villany |
| Fűtés módja: | Villany |
| Komfort fokozat: | Dupla komfort |
| Kor: | 21-50 éves |
| Szintek száma: | Földszintes |
| Egész szobák: | 6 |
Ingatlanhírek kéthetente, e-mailben. Iratkozzon fel hírlevelünkre!