Eladó családi ház Teskánd 23 800 000 Ft

Leírás


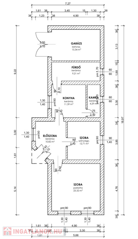
Emeleti elhelyezkedés: Földszinten Épület emeleteinek száma: 1 Állapota: Használt - felújítandó Komfort besorolása: Komfortos Építési éve: 1940 Alapterülete: 70 m2 Telekterülete: 1 200 m2 Szobák száma: 3szoba Közművek: Gáz, Víz, Villany, Csatorna Vízellátás: Vezetékes víz, Közelben Áramellátás: Telekhatáron, Közelben Fűtés módja: Gáz Fűtés típusa: Konvektoros Homlokzat állapot: átlagos Építési mód: Tégla Napelem: Van Energetikai besorolás: Nincs adat

Extrák: Különnyíló szobák
Nagy telekkel rendelkező családi ház eladó Teskándon.
Felújítandó, tehermentes, azonnal költözhető.

1980-ban felújított tégla építésű 70m²-es ház 1200m²-es telekkel.

2 szoba +nappali helyiség, konyha, fürdő szoba és wc, garázs, melléképület
A ház fűtése konvektorról működik.

Ha felkeltette érdeklődését a ház,keressen bizalommal!

Családi ház részletei

Ár: 23 800 000 Ft
Méret: 70 négyzetméter
Azonosító: 11615470
Cím: Petőfi Sándor utca
Telek: 1200 négyzetméter
Ingatlan állapota: Felújítandó
Jelleg: családi ház
Építőanyag: Tégla
Fűtés jellege: Konvektoros
Fűtés módja: Gáz
Komfort fokozat: Komfort
Kor: 1-5 éves
Szintek száma: Földszintes
Egész szobák: 3

Egyéb jellemzők

  • Csatorna

Térkép