Eladó iroda/üzlethelyiség Debrecen 1 700 000 000 Ft

Leírás

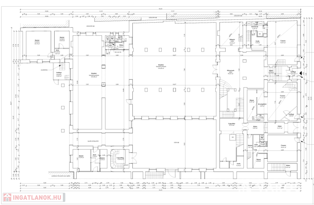
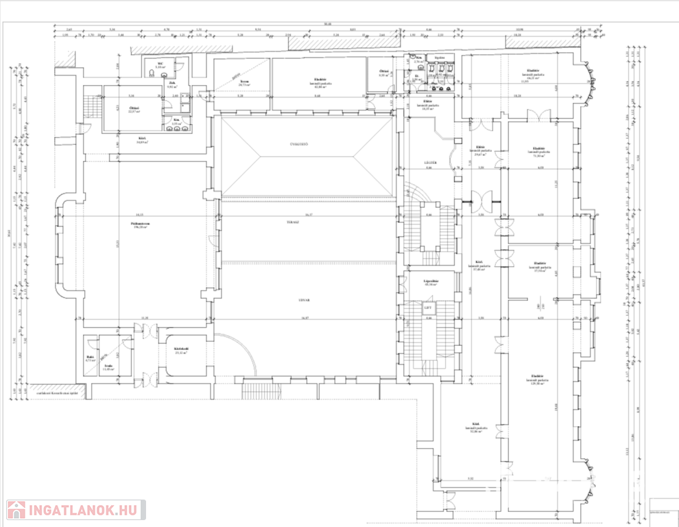
Debrecen főutcáján, a régi városháza szomszédságában épült a város legrégibb pénzintézete, a Debreceni Első Takarékpénztár palotája, szecessziós stílusban. Az épület egykor a város ékessége volt, hiszen az egyre terjedő építészeti divat Debrecent is elérte.Modern kori funkciója közismert: 2005-től a Debreceni Művelődési Központ székhelye, közösségi, kulturális események, kiállítások otthona a Pódiumtermet és a Kiállító termet (Belvárosi Galériát) is magába foglaló épület volt. A saroképület ma ismert formáját az évszázad második évtizedének elejére érte el. Elegáns külsejét elsősorban annak köszönhette, hogy a Takarékpénztár elhatározta, a bérbe adható boltok és lakások mellett, bővíthető banki tér jöjjön létre és a kaszinónak is kényelmesebb helyet akartak. Az új takarékpénztár gazdagon díszített, háromemeletes székházát ifjabb Rimanóczy Kálmán nagyváradi műépítész tervei alapján 1911-12-re építették fel.„A debreczeni Első Takarékpénztár háromemeletes fényes, új palotája ez idő szerint Debreczennek legszebb, legnagyobb, tegyük hozzá, legjövedelmezőbb bérpalotája volt…, és méltó dísze még ma is Debrecen főutcájának! Ezt a csodálatos impozáns ingatlant kínáljuk most megvételre, amelyben rengeteg fantázia van, és megérdemli, hogy az új tulajdonosa, megvalósítsa benne az álmai üzleti tevékenységét, ahogyan a régi tulajdonosai is ezt tették, nem kis sikerekkel!

További információkért és megtekintésért keressen bizalommal!
TRIPSÓ TIBOR
+36 30 942 5373
Prémium ingatlanértékesítő
Városi Ingatlaniroda
Debrecen
(További képekért és információkért kérem hívjon!)

Iroda/üzlethelyiség részletei

Ár: 1 700 000 000 Ft
Méret: 1 693 négyzetméter
Azonosító: 11519484
Irodai azonosító: 139634
Jelleg: Üzlethelyiség