Eladó iroda/üzlethelyiség Veszprém 170 120 000 Ft

Leírás

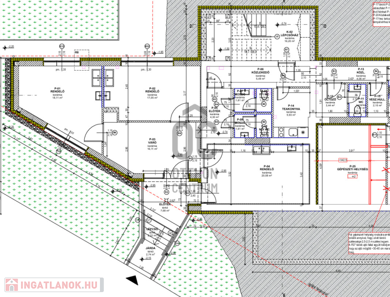
Modern, igényesen kivitelezett lakások mellett található orvosi rendelő zárt, biztonságos udvarban, nyugodt környezetben. Külön(saját) parkoló az épület mellett!

Főbb jellemzők:
-Jelenlegi kialakítás szerint 3 rendelő kerül kialakításra, melyek18-20nm közöttiek, emellett egy közös váró, illemhelyiségek, teakonyha és öltöző-személyzeti illemhelyiséggel kerül építésre.
-Minőségi anyaghasználat és esztétikus burkolatok

Műszaki tartalom:
-fűtése hőszivattyúval megoldott, így rendkívül költséghatékony a fenntartása
-3 rétegű hőszigetelt műanyag ablakok fém külső borítással
-árnyékolás elektromos zsalúziával megoldott
-falazata 30 cm tégla, rajta 18 cm Austrotherm grafit hőszigetelés
-lakásválaszfal: 5 cm YTONG PEF előfalazó, 25 cm Porotherm 25 AKU Z, 5 cm YTONG PEF előfalazó
-közbenső födém: 30 cm vasbeton, 7,5 cm aljzatbeton, 6 cm Austrotherm EPS AT-L2 lépésálló hangszigetelés, padlófűtés, burkolat
-zárófödém: 1 rtg. páraáteresztő fólia, 15 cm ásványgyapot hőszigetelés faszerkezet között, 10 cm ásványgyapot hőszigetelés faszerkezet között, 1 rtg. párazáró fólia, 2 rtg. 12,5 mm RF tűzgátló gipszkarton burkolat bordavázon
-tető fedése Bramac cserép
-villany mérete lakásonként 3x20A + 3x10A H tarifa

Miért érdemes választani:
-Modern, energiatakarékos rendelő
-Biztonságos, zárt udvari elhelyezkedés
-Könnyen megközelíthető

Átadási határidő: 2026.09.30.

BANKFÜGGETLEN hitelben és teljes körű ügyintézésben segítünk!

Iroda/üzlethelyiség részletei

Ár: 170 120 000 Ft
Méret: 119 négyzetméter
Azonosító: 11616321
Jelleg: iroda