Eladó lakás Békéscsaba 55 000 000 Ft

Leírás

Modern kialakítású lakás eladó – berendezési tárgyakkal együtt
Békéscsaba Belváros – Andrássy út

-------------------------------------------------------------------------------------
Az ingatlan időpont-egyeztetés után megtekinthető, és 2026.03.01-től költözhető.
-------------------------------------------------------------------------------------
Az ingatlan HITELES ENERGETIKAI TANÚSÍTVÁNY-al rendelkezik (HET-1001-0711), amely alapján az ingatlan energetikai besorolása: A
- Alacsony rezsi
-------------------------------------------------------------------------------------
Az ingatlant tulajdonoskent hirdetjük.
-------------------------------------------------------------------------------------

A tégla építésű épület, amiben a 87 m2-es (80m2 lakóterület + 7m2 erkély) IV. emeleti, 3+ szobàs, összkomfortos lakás található, minden oldalról fàkkal, parkkal hatàrolt, belvárosi elhelyezkedéssel rendelkezik.

Az ingatlan a közelmúltban teljes felújításon esett át:
- az eredeti zegzugos felosztást felszámolva, az új kialakítás a mai kor minden elvárását messzemenőkig kielégítő modern, letisztult, egységes formavilággal jellemezhető
- a külső felületek hőszigeteléssel lettek ellátva
- minden nyílászáró műanyag, hőszigetelt és redőnnyel illetve szúnyoghálóval felszerelt
- a lakás minden helyiségében vegyesen megtalálható az alacsony hőmérsékletű padló-, fal-, mennyezetfűtési rendszer, ami a komfortérzet szempontjából a legmegfelelőbb a bent tartózkodók számára
- minden helyiség hűtése hoszivattyus klima berendezessel megoldott
- az ingatlanban beépített infraszauna található
- az elektromos szerelvények SIEMENS típusúak
- a komplett építészeti és épületgépészeti rendszer kialakításakor csak és kizárólag magas minőségű anyagok kerültek beépítésre

Az ingatlan folyamatos karbantartás alatt van:
- 2022.12: kondenzációs gázkazán csere
- 2023.06: mosó-, szárítógép csere
- 2023.06: az összes világítás cseréje LED-re
- 2023.12: az ingatlan teljes egészében frissen festett

Közös költség: 9.750 Ft/hó

Parkolasi lehetoseg a belso udvarban, lakossagi parkolasi kartyaval aminek az összege 3000.- HUF/ev.

A hirdetésben szereplő ár az alább felsorolt berendezési tárgyakkal együtt értendő.

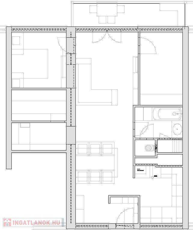
Helyiség és berendezés kiosztàsa a következő:

[001] Előszoba
beépített szekrény

[002] Nappali-Étkező
tálaló szekrény
rozsdamentes lábakkal rendelkező étkező asztal + 4 szék
komplett nappali bútor
tágas kijárási lehetőség a napos erkélyre

[003] Konyha
komplett konyhabútor
vízszűrő berendezés
Whirlpool márkájú, beépített sütő
Whirlpool márkájú, beépített gáz üzemű főzőlap
Whirlpool márkájú, beépített páraelszívó
Whirlpool márkájú, beépített, 12 személyes mosogatógép
Whirlpool márkájú beépített hűtő-, fagyasztószekrény
Teka márkájú rozsdamentes mosogató + egykaros csaptelep
szelektív hulladékgyűjtő

[004] WC
beépített tartályos, falra függesztett kivitelű WC

[005] Fürdő
beépített mosdó + egykaros KLUDI csaptelep
kád + rejtett befolyós KLUDI beépített csaptelep esőztető és kézi zuhannyal
beépített szekrény
beépített mosó-, szárítógép

[006] Infraszauna
egyszemélyes
1250 WATT összteljesítményű

[007] Szoba
parafa padlóburkolat
300 kg parajdi sótégla
fenyőfa beépített bútor
90x200 cm-es beépített ágy ágyneműtartóval

[008] Dolgozó
komplett beépített szekrény
íróasztal

[009] Gardrobe
komplett beépített szekrény 6m x 2.7m

[010] Szoba
160x200 cm-es beépített ágy ágyneműtartóval
2 db éjjeli szekrény
beépített bútor

[011] Terasz

Lakás részletei

Ár: 55 000 000 Ft
Méret: 87 négyzetméter
Azonosító: 11597310
Cím: Andrassy ut 29-33/B
Erkély mérete: 7.00 négyzetméter
Összesített energetikai besorolás: A
Fajlagos szén-dioxid kibocsátás: A
Rezsi: 14 000 Ft/hó
Emelet: 4. emelet
Építőanyag: Tégla
Fűtés jellege: Egyedi
Ingatlan állapota: Felújított
Komfort fokozat: Luxus komfort
Építési év: 1-5 éves
Elhelyezkedés: Társasház
Tulajdonviszony: Saját
Bútorozott: Bútorozott
Kilátás: panorámás
Kert: Nincs
Egész szobák: 4
Fél szobák: 2
Nappalik: 1

Egyéb jellemzők

  • Erkély
  • Garázs
  • Klíma
  • Lift
  • Pince
  • Kertkapcsolat
  • Tároló
  • Kocsibeálló

Térkép

Hasonló lakás hirdetések

Eladó lakás

Békéscsaba

Eladó egy kivételes adottságokkal rendelkező, tágas polgári lakás Békéscsaba ...

Hasonló lakás hirdetések

Eladó lakás

Békéscsaba

Eladó egy kivételes adottságokkal rendelkező, tágas polgári lakás Békéscsaba ...