Eladó lakás Budapest XV. ker 120 000 000 Ft

Leírás

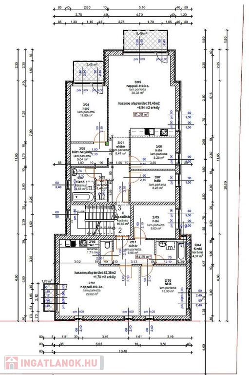
XV. KERÜLETBEN: KERTVÁROSI KÖRNYEZETBEN, ÚJ ÉPÍTÉSŰ, 78 M2, AMERIKAI KONYHÁS NAPPALIS, 3 HÁLÓSZOBÁS, I. EMELETI, BELSŐ KERTRE NÉZŐ, ERKÉLYES TÁRSASHÁZI TÉGLALAKÁS, DUPLAGARÁZZSAL (29 M2), 4 M2 TÁROLÓVAL.



A LAKÁS JELLEMZŐI:

A lakás várható átadási határideje 2026 év vége.

A társasház 4 lakásos lesz, 2 szintes, téglaépítésű, betonfödémes, 10 cm-es grafitos külső szigeteléssel is ellátnak majd.

Egy tágas amerikai konyhás nappali, 3 háló, fürdőszoba és egy 9 m2-es erkély kerül kialakításra.

A nyílászárók rétegű hőszigetelt ablakok lesznek, motoros redőnyökkel ellátva.

Hőszivattyús fűtés-fűtés rendszer (mennyezeti) és padlófűtés biztosítja a meleget. Az ár tartalmazza a burkolatokat, szerelvényeket és szanitereket is.

Elektromos autó töltéséhez az udvari parkolóban lesz lehetőség. Egy 29 m2-es 2 állásos garázs tartozik a lakáshoz és egy 4 m2-es tároló.



FINANSZÍROZÁS:

Az ingatlan TEHERMENTES lesz, hitelre is megvásárolható. Bankfüggetlen tanácsadóink, az ország összes pénzintézete közül gyorsan és gördülékenyen találja meg az Önnek legmegfelelőbb konstrukciót, egyedi kedvezményekkel. A hitel közvetítés díjmentes.

Várjuk hívását munkanapokon 09:00-18:00 között.

A hirdetésben szereplő adatok tájékoztató jellegűek.

Amennyiben eladná saját ingatlanát, több mint 16 éve működő, kifejezetten a kerületre szakosodott irodánktól, INGYENES ÉRTÉKBECSLÉST kérhet.

Lakás részletei

Ár: 120 000 000 Ft
Méret: 78 négyzetméter
Azonosító: 11610965
Irodai azonosító: 25289
Emelet: 1. emelet
Építőanyag: Kérdezzen rá a hirdetőtől »
Ingatlan állapota: Átlagos
Egész szobák: 3
Fél szobák: 1