Kiadó családi ház Budapest III. ker 490 000 Ft

Leírás

III. kerület csodálatosan napos domboldalán ARANYHEGYEN, természetvédelmi terület szomszédságában, nagyon igényes kivitelezésű, FOKOZOTTAN ENERGIATAKARÉKOS, ÚJSZERŰ KÖRPANORÁMÁS TETŐTERASZOS ikerházi lakást kínálunk kiadásra.

A lakás 1 db. KOCSIBEÁLLÁSI lehetőséggel illetve 1 db. TEREMGARÁZS hellyel ( akár 2 autónak is ), illetve saját MOSÓKONYHÁVAL-TÁROLÓVAL rendelkezik a pinceszinten, továbbá lekerített SAJÁT kb. 200 m² TELEKRÉSZ is tartozik hozzá.
A saját telken medencével, kerti játszóvárral és kerti tárolóval!

CSENDES ZÖLDÖVEZET, mégis mindenhez nagyon közel, KIVÁLÓ KÖZLEKEDÉSI és BEVÁSÁRLÁSI lehetőségek, ( Auchan, Tesco ), iskola, óvoda, stb.

Várható birtokbaadás: AZONNAL KÖLTÖZHETŐ.
Bérbeadási időszak: minimum 2 év, Közjegyzői okirat a Bérlő költsége.
Kaució: 3 hónap. ( kisállat esetén +1 hónap )

További információk:

Lakás alapterülete: 95 m2
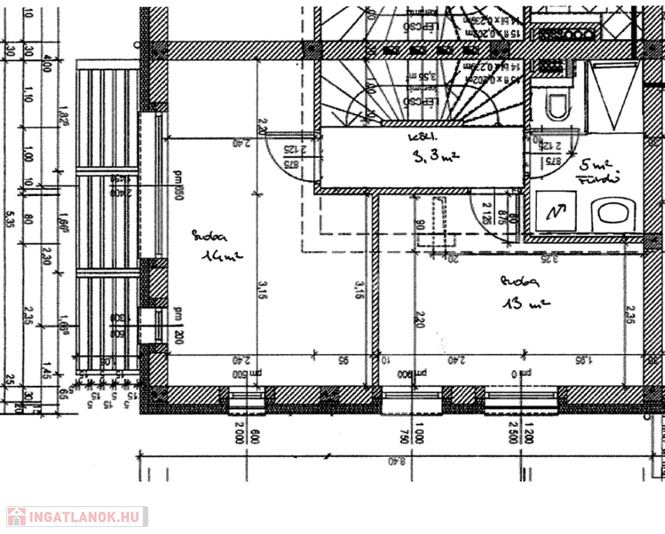
- alsó szint: nappali-étkező-konyha, wc
- felső szint: 2 db. szoba, fürdőszoba ( kád, wc, mosdó )
- tető szint: 1 db. szoba tetőterasszal

Lakáshoz tartozó egyéb területek:
- kizárólagos használatú parkosított kert + automata locsolóhálózattal
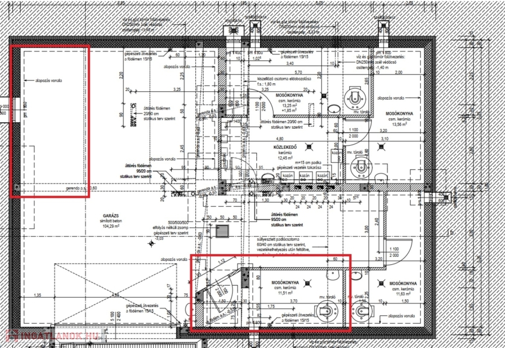
- 1 db. pinceszinten található mosókonyha-tároló ( 14 m2 )
- 1 db. pinceszinten található gépkocsi tároló ( egymás mögött 2 autó számára is van lehetőség )
- 1 db. utcaszinti zárt gépkocsi parkoló

A lakás bútorozatlan ( kivéve beépített bútorok: konyhabútor + gépek, mosdópultok, split-klímák, lámpák stb.)

- Fűtés és melegvíz: programozható kondenzációs gázkazán ( kazán az épület pinceszintjében található ), használati melegvíz oldalon melegvíztárolóval / napkollektorral és a fűtési oldalon kishőlépcsős integrált csőkígyós ( fali és mennyezeti ) felületfűtéssel

- Hűtés: minden lakószobában ( nappali, hálók ) 1 db split klíma berendezés

- Árnyékolás: mindegyik helyiségben ( nappali és 2 db. hálószoba programozható motoros ) redőnyös árnyékolással rendelkezik.

- Az épület hőszigetelése: protherm vázkerámia + 15 cm EPS dryvit hőszigetelés, a tetőszigetelése 25 cm EPS

- Nyílászárók: ablakok-erkély ajtók: Rehau hőszigetelő üvegezéssel, bejárati ajtó: több ponton záródó biztonsági ajtó.

- Lakáshoz tartozó mérőórák: Áram, Gáz, Víz, Locsolóvíz.
Gáz- és áramfogyasztás elszámolása a lakás saját órája alapján.
Minden fogyasztás ( kivéve víz ) havonta olvassa és számlázza bérbeadó.

-Vízátalány ( víz, locsolóvíz mérőórával ): 5 000 Ft/hó ( 3-4 havonta fogyasztás/óra alapján elszámolva ).

- Közös költség: 22 000 Ft/hó ( Társasházi Közös területeken: kuka, takarítás, só, takarítószerek, térköves felületek karbantartása közösképviselet, javítási munkák, közös területek kertészeti munkák, kopó-fogyó elemek cseréje, kapukarbantartás stb.)
- Felújítási alap: 3 000 Ft/hó

Bérleti díj nettó : 490.000 Ft/hó + Áfa ( számlával )

Az ingatlan részletes ismertetése és bemutatása előre egyeztetett időpontban lehetséges, melyet nagyon rugalmasan kezelünk, akár HÉTVÉGÉN is.
Amennyiben Önnek a vásárláshoz szüksége lenne hitelre egyedi kedvezménnyel, CSOK PLUSZ-ra, Babaváró Kölcsön, állami támogatásokra, stb., kezdeményezheti a kapcsolatfelvételt bankfüggetlen hitelügyintézőinkkel, teljesen DÍJMENTESEN.
Közel 25 év szakmai tapasztalattal rendelkezem, eladó vagy kiadó ingatlana értékesítése vagy bérbeadása esetén, készséggel állok az Ön rendelkezésére is.

Családi ház részletei

Ár: 490 000 Ft/hónap
Méret: 95 négyzetméter
Azonosító: 11591130
Irodai azonosító: 391429
Cím: Aranyhegyen, Kiadó Igényes Ikerház
Telek: 200 négyzetméter
Ingatlan állapota: Felújított
Jelleg: ikerház
Építőanyag: Tégla
Fűtés jellege: Cirkó
Fűtés módja: Gáz
Komfort fokozat: Dupla komfort
Kor: 6-10 éves
Szintek száma: 3 szint
Egész szobák: 4

Egyéb jellemzők

  • Csatorna
  • Garázs
  • Pince
  • Terasz

Térkép

Hasonló családi ház hirdetések

Kiadó családi ház

Budapest III. ker, Csillaghegy

Kiadó családi ház

Budapest III. ker

Kiadó, 3 szintes, 95 m²-es, teljesen felújított ikerházrész medencével ...

Hasonló családi ház hirdetések

Kiadó családi ház

Budapest III. ker, Csillaghegy

Kiadó családi ház

Budapest III. ker

Kiadó, 3 szintes, 95 m²-es, teljesen felújított ikerházrész medencével ...