Kiadó lakás Győr 200 000 Ft

Leírás

Győr-Révfalu csendes utcájában keresem új bérlőjét ennek az erkélyes, 38m2 alapterületű, másfél szobás, bútorozott lakásnak.
Az ingatlan egy saját zárt udvarral rendelkező, 3 szintes, 10 éve épült társasházban helyezkedik el.
A lépcsőház tiszta, rendezett, a lakóközösség megbízható, barátságos.
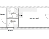
A lakás az első emeleten található, elosztása szerint: nappali-konyha-étkező, hálószoba, fürdő-wc, előszoba helyiségekből áll.
Az erkély mérete: 4nm.
Az autó parkolásra sem lesz gondja, hiszen egy saját zárt, belsőudvari kocsibeálló is tartozik hozzá.
A lakás bérleti díja a gépkocsibeállóval együtt: 200.000,-Ft+rezsi/hó
(Rezsiköltség átlagosan 35.000,-Ft/hó körül alakul)
Szerződéskötéshez 1 havi bérleti díj és 2 havi kaució, valamint közjegyzői kiköltözési nyilatkozat szükséges, melynek költsége ~50.000,-Ft.
A lakás február 1-től költözhető, minimum 1 évre kiadó.
Megbízható, rendszerető személyt, fiatal párt keresünk, akik gondját viselik ennek a kis otthonnak.
Kisállat tartása és a dohányzás a lakásban nem megengedett!

Várom hívását, ez egy klassz lakás, klassz helyen!
(További képekért és információkért kérem hívjon!)

Lakás részletei

Ár: 200 000 Ft/hónap
Méret: 38 négyzetméter
Azonosító: 11587312
Irodai azonosító: 024167
Erkély mérete: 4.00 négyzetméter
Építőanyag: Tégla
Fűtés jellege: Cirkó
Ingatlan állapota: Kitűnő
Egész szobák: 2
Nappalik: 1

Egyéb jellemzők

  • Erkély
  • Garázs
  • Klíma
  • Lift
  • Pince
  • Kertkapcsolat

Hasonló lakás hirdetések

Kiadó lakás

Győr

Győr-Belvárosában, a Baross utca közvetlen közelében, magasföldszinti, ...

Kiadó lakás

Győr

Győrben, Belváros városrészben, Árpád úton szigetelt, tiszta, rendezett ...

Kiadó lakás

Győr

Győr Belvárosában, az Árkád szomszédságában ajánlom figyelmébe ezt ...

Kiadó lakás

Győr, Révfalu

Győr Révfaluban kiadó kertkapcsolatos lakás Az egyik legnépszerűbb városrészben ...

Hasonló lakás hirdetések

Kiadó lakás

Győr

Győr-Belvárosában, a Baross utca közvetlen közelében, magasföldszinti, ...

Kiadó lakás

Győr

Győrben, Belváros városrészben, Árpád úton szigetelt, tiszta, rendezett ...

Kiadó lakás

Győr

Győr Belvárosában, az Árkád szomszédságában ajánlom figyelmébe ezt ...

Kiadó lakás

Győr, Révfalu

Győr Révfaluban kiadó kertkapcsolatos lakás Az egyik legnépszerűbb városrészben ...