Kiadó lakás Tata 300 000 Ft

Leírás

KIADÓ LAKÁS TATÁN – A TATA GARDEN HOMES LAKÓPARKBAN

Modern, okosotthon rendszerrel felszerelt, teraszos lakás garázzsal és tárolóval.

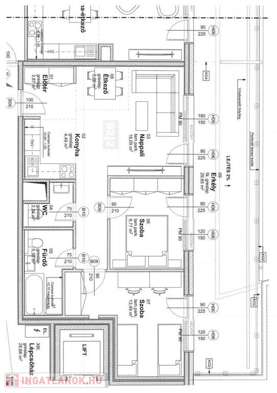
Tata kertvárosi, csendes részén, a vadonatúj Tata Garden Homes lakóparkban kiadó egy 61 m²-es, második emeleti, amerikai konyhás nappali + 2 hálószobás modern lakás, 30m²-es hatalmas terasszal, ahonnan gyönyörű kertvárosi kilátás nyílik.
Minden szobából és a nappaliból közvetlen kijárat van a tágas teraszra, így rendkívül világos . A lakás ízléses, modern bútorokkal felszerelt, így az új bérlőnek csak költöznie kell.

Az ingatlan okosotthon-rendszerrel működik: a fűtés, világítás, redőnyök távolról vezérelhetők, a biztonságot pedig füstjelző is növeli.
A padlófűtés és az egyedi mérésű hűtő-fűtő klíma garantálja az alacsony rezsit és a maximális kényelmet.

A lakás korszerű építési technológiával készült, a lépcsőházban saját hőközpont található, így a fűtés és melegvíz fogyasztása egyedileg mérhető.
Az épületben lift üzemel, a földszinten teremgarázsok és tárolók helyezkednek el.

Kiadó: november 1-től
Lakásbérleti díj: 300.000 Ft/hó+rezsi
Garázs: +30.000 Ft/hó
Tároló: +20.000 Ft/hó
A garázs és tároló bérlése kötelező, így az összesen fizetendő bérleti díj: 350.000 Ft/hó+SZJA+ rezsi

A lakás minimum egy évre, hosszú távra kiadó.

Érdeklődni:
Szabó Szilvia
Dot-Ing Ingatlaniroda
Tel.: +36 70 367 7636

Lakás részletei

Ár: 300 000 Ft/hónap
Méret: 61 négyzetméter
Azonosító: 11573941
Irodai azonosító: 9522
Cím: Tata
Emelet: 2. emelet
Építőanyag: Kérdezzen rá a hirdetőtől »
Fűtés jellege: Házközponti (egyedi mérővel)
Ingatlan állapota:
Építési év: Új építésű
Egész szobák: 3

Egyéb jellemzők

  • Erkély

Hasonló lakás hirdetések

Kiadó lakás

Tata

Elegáns villalakás TULAJDONOSTÓL bérelhető!!!! Tatán az Angolpark bejáratánál ...

Kiadó lakás

Tata

A tatabányai Openhouse Ingatlaniroda kínálatában kiadó a 153109-es referencia ...

Kiadó lakás

Tata

Kiadó Tatán, egy I.emeleti, 73m2-es erkélyes lakás. Teljes felújításon ...

Kiadó lakás

Tata

KIADÓ LAKÁS TATÁN – A TATA GARDEN HOMES LAKÓPARKBAN Modern, okosotthon ...

Hasonló lakás hirdetések

Kiadó lakás

Tata

Elegáns villalakás TULAJDONOSTÓL bérelhető!!!! Tatán az Angolpark bejáratánál ...

Kiadó lakás

Tata

A tatabányai Openhouse Ingatlaniroda kínálatában kiadó a 153109-es referencia ...

Kiadó lakás

Tata

Kiadó Tatán, egy I.emeleti, 73m2-es erkélyes lakás. Teljes felújításon ...

Kiadó lakás

Tata

KIADÓ LAKÁS TATÁN – A TATA GARDEN HOMES LAKÓPARKBAN Modern, okosotthon ...