Eladó garázs Zalaegerszeg 11 200 000 Ft

Leírás

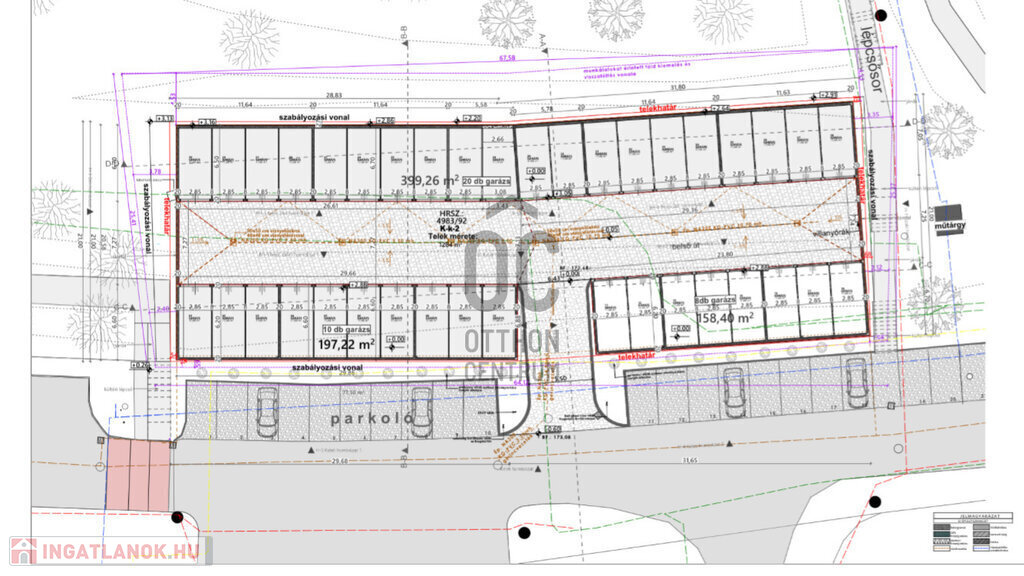
Korszerű előregyártott beton elemekből készülő, modern stílusú garázsok LANDORHEGY szívében.

Jellemzők:
- Hőszigetelt oldalfalakkal és lapos tetővel, szekcionált, motoros garázskapukkal.
- Egységes, 17,68 nm alapterülettel.
- A garázsok közötti elválasztó falak variálhatóak, illetve nagyobb terek létrehozásához kivehetőek, így dupla garázsok is létrehozhatóak, egyedi igény szerint.
- A tervezésnél különös figyelmet fordítottak az épület külső megjelenése illeszkedjen a jelenlegi környezethez.
- A nyugati épületsoron zöld tető kerül kialakításra.
- A keleti homlokzat felfutó növény telepítéssel kerül kivitelezésre,illetve dísznövények kerülnek a járda melletti földsávra.
- Körbekerített, sorompóval lezárt, tér világítással ellátott terület.
- Villamos hálózat: Nappali tarifás villamos energiaellátás: 1x32Amper/garázs. A garázsokban villamos alapszerelés kerül kialakításra, a gégecsövek a tartó szerkezetekben történő elhelyezésével. 3db 220V aljzat, 1db kapcsoló, 1db mennyezeti lámpa, a szerkezetbe süllyesztve, dobozhely kiállással,
vezetékelve. Az áramszolgáltató felé előzetes energiaigény lett benyújtva a fentiek szerint.

A kivitelezés ütemezése az alábbiak szerint:
I. ÜTEM: 10 db garázs 2025. szeptember- 2026. március
II. ÜTEM: 8 db garázs 2026. március- 2026. szeptember

További információért keressen bizalommal!

Garázs részletei

Ár: 11 200 000 Ft
Méret: 17 négyzetméter
Azonosító: 11610850
Irodai azonosító: G1997011-5189544
Férőhely: 1 férőhelyes
Jelleg: egyedi

Térkép

Hasonló garázs hirdetések

Eladó garázs

Zalaegerszeg

Korszerű előregyártott beton elemekből készülő, modern stílusú garázsok ...

Hasonló garázs hirdetések

Eladó garázs

Zalaegerszeg

Korszerű előregyártott beton elemekből készülő, modern stílusú garázsok ...