Eladó családi ház Adony 64 000 000 Ft

Leírás

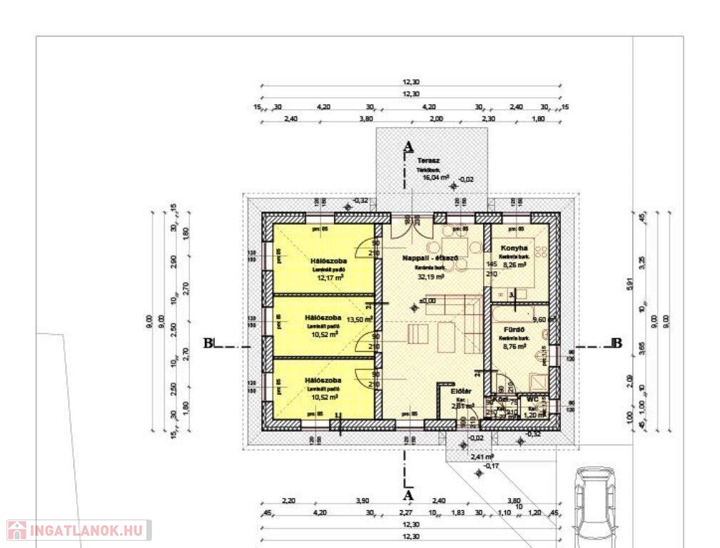
A ház elrendezése nagyon jó. A nappali-étkező a ház központja, innen nyílnak a hálószobák, konyha és a terasz is! A ház az utcától távolabb épül, így az utca forgalma nem zavarja majd a lakókat! Az ingatlan megfelel a falusi CSOK és a CSOK+ követelményeinek is!



Helyiségek:



Előtér (2,8 nm), nappali+étkező (32,2 nm), konyha (8,2 nm), 3 hálószoba (12,2nm, és 2x10,5 nm), fürdő (8,8 nm), közlekedő (1,3 nm), WC (1,2 nm) és terasz (16 nm).



Műszaki leírás:

A ház beton alappal, POROTHERM 30-as téglából, 15 cm dryvit hőszigetelő rendszerrel, nemes vakolattal, fa födémmel (alul gipszkarton, felette szigetelés, deszka burkolattal), sátortetővel, Bramach cserépfedéssel épül. Nyílászárók: műanyag-, 3 rétegű termo, bukó-nyíló nyílászárókkal (hő és hangszigetelt). Fűtés elektromos fűtőpanelek és hűtő-fűtő klíma biztosítja és a meleg vízet villanybojler adja. Burkolatok: a szobákban, laminált parketta, a többi helyiségekbe, járólap lett tervezve.



Az építkezést még nem kezdték el, így még van lehetőség módosítani a terveken a vevő elképzelése szerint! Várható átadási határidő a szerződéskötéstől számított 6 hónap kulcsrakész állapotban.



Az árban benne van: kültéri ház körüli járda, tereprendezés, térburkolatok (viacolor), kerítés.



Adony egy hangulatos, vonzó 4000 fős község a Duna partján, Budapesttől Délre, kb. 40 km távolságra az M6-os autópálya mentén (Dunaújvárostól 20 km-re). A környéken épült és jelenleg épülő üzemekben bőséges munkalehetőség van! A településen általános iskola (művészeti tagozattal), kulturális központ és könyvtár, rendőrség, posta, kormányablak működik, üzletek (SPAR, Reál pont), szolgáltatások széles köre, szerviz, MOL benzinkút, tűzép-telep, stb. található! A horgászat szerelmeseinek nem csak a Duna, hanem a faluban lévő halastavak is kedvelt célpontjai!

Ha kérdésed van vagy meg szeretnéd nézni, hívj bátran!

------------------------------------------------------------------------------------------------------------

Gacsó Ház Ingatlanközvetítő Kft.
INGATLAN/HITEL/BIZTOSÍTÁS



Az ingatlanoknak mérete és ára van, az otthon igazi értéke viszont felbecsülhetetlen! Mi ezért - az értékbecsléstől a birtokbaadásig - végigkísérünk az ingatlan adásvétel folyamatán, hogy anyagi, jogi és érzelmi biztonságban legyél!



Szívügyünk az otthonod!



Irodáink: 1163 Budapest, Veres Péter út 39.
2440 Százhalombatta, Erkel Ferenc körút 1. (üzletsor)



Hívj bizalommal: Nádasi Norbert

Családi ház részletei

Ár: 64 000 000 Ft
Méret: 88 négyzetméter
Azonosító: 11582028
Irodai azonosító: 360151069-812
Telek: 1000 négyzetméter
Ingatlan állapota: Kérdezzen rá a hirdetőtől »
Jelleg: családi ház
Építőanyag: Tégla
Fűtés jellege: Villany
Fűtés módja: Villany
Komfort fokozat: Összkomfort
Kor: 1-5 éves
Egész szobák: 4

Egyéb jellemzők

  • Csatorna
  • Garázs
  • Kábel TV
  • Padlás
  • Pince
  • Terasz

Hasonló családi ház hirdetések

Eladó családi ház

Adony

Adony központjában két szintes, összesen 150 m2 hasznos alapterülettel ...

Hasonló családi ház hirdetések

Eladó családi ház

Adony

Adony központjában két szintes, összesen 150 m2 hasznos alapterülettel ...