Eladó családi ház Adony 79 900 000 Ft

Leírás

VARÁZSLATOS TELKEN ÉPÜLŐ, TÁGAS IKER HÁZ, HŐSZIVATTYÚS FŰTÉSSEL, TERASSZAL, GARÁZZSAL!

Ajánlom figyelmébe ezt az iker- házat!

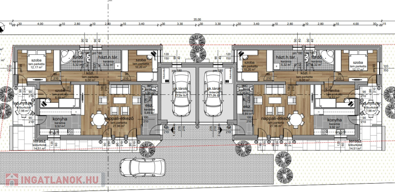
Adony legszebb utcájában eladó egy 500 m2-es, telken épülő, ÚJ ÉPÍTÉSŰ, nettó 93 m2-es, 3 szoba + nappalis,akár 4 szobás is lehet, külön helyrajzi számmal rendelkező ingatlanok!

Az ingatlan ideális helyen épül, csend, nyugalom jellemzi a helyet!

Fontos, hogy az ingatlanvásárlás hosszú távon is értékálló befektetés legyen!

Kiváló adottságú telek előnyeit figyelembe véve alaposan átgondolt tervezés alapján épül az ingatlan benapozottsága optimális.

A beépített anyagok minőségének és a korszerű technológiának köszönhetően az ingatlan energiatakarékos, gazdaságosan üzemeltethető.

Rövid műszaki leírás:
A ház vasalt, szigetelt beton sávalapra épül, 30-as Porotherm tégla tartófalakkal és 10-es Porotherm tégla, vakolt válaszfalakkal.
A homlokzatra 15 cm-es dryvit, a lábazatra 10 cm-es xps, az aljzatra 10 cm-es lépésálló és a fa szerkezetű födémre 30 cm-es kőzetgyapot szigetelés kerül.
A tető fedése Terran cseréppel.
A fűtésről hőszivattyú gondoskodik, padlófűtéssel.

A hideg és meleg burkolatok igény szerint választhatók 5.000 Ft / nm árig.

Ajánlom mindazon 1-3 gyerekes házaspároknak, pároknak, nyugdíjasoknak, akik egy igazán kiváló, jól megközelíthető, jó adottságokkal rendelkező, csendes, nyugodt helyen szeretnék élni a mindennapjaikat. Ha szeretne kiszabadulni a városi körforgásból, de mégsem akar végleg elszakadni tőle, akkor a legjobb választás ez a környék, ahol az ébredés után saját teraszán kortyolhatja a reggeli kávéját, szippanthatja magába a friss levegőt és hallgathatja a madarak csicsergését.

Amennyiben az ajánlatom felkeltette érdeklődését, kérem keressen telefonon.

Szép napot és sikeres vásárlást kívánok Önnek!

Családi ház részletei

Ár: 79 900 000 Ft
Méret: 108 négyzetméter
Azonosító: 11568109
Telek: 500 négyzetméter
Ingatlan állapota: Kitűnő
Jelleg: ikerház
Építőanyag: Kérdezzen rá a hirdetőtől »
Egész szobák: 4

Egyéb jellemzők

  • Csatorna
  • Garázs
  • Kábel TV
  • Melléképület
  • Parketta
  • Pince
  • Terasz

Hasonló családi ház hirdetések

Eladó családi ház

Adony

VARÁZSLATOS TELKEN ÉPÜLŐ, TÁGAS CSALÁDI HÁZ, HŐSZIVATTYÚS FŰTÉSSEL, ...

Hasonló családi ház hirdetések

Eladó családi ház

Adony

VARÁZSLATOS TELKEN ÉPÜLŐ, TÁGAS CSALÁDI HÁZ, HŐSZIVATTYÚS FŰTÉSSEL, ...