Eladó családi ház Aszód 75 000 000 Ft

Leírás

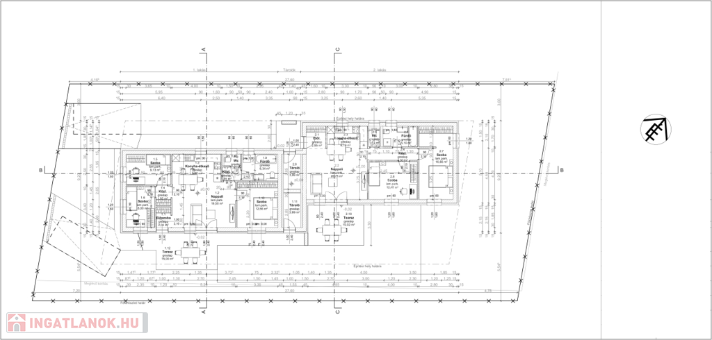
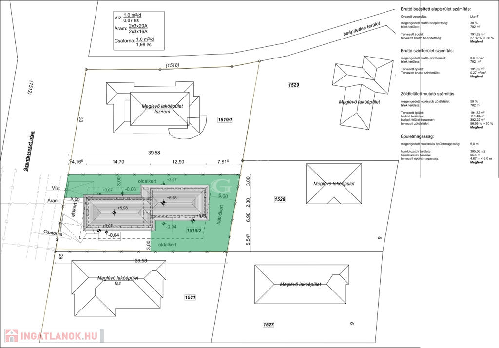
Aszód Rózsadombján a Szentkereszt utcában 702m2-es telkeken, újonnan épülő nettó 75,56 m2 és nettó 73 hasznos lakótérrel rendelkező, kulcsrakész ikerházfelek eladóak megbízható számos referenciával rendelkező kivitelezőtől.

Az utcafronti 3 szoba + nappalival rendelkező ikerfél telekterülete 240 m2, a hátsó 2 szoba + nappalival tervezett ingatlan telekterülete 462 m2.

Az ingatlanok 30-as Nútféderes tégla falazóelemből épülnek, fafödémmel. A tető héjazata antracit betoncserép lesz, a homlokzatok 15cm EPS, a padló 10cm lépésálló, a födém 25cm ásványgyapot szigeteléssel lesz ellátva.

A külső nyílászárók 6 légkamrás háromrétegű üveggel szerelt műanyag thermók lesznek.

A fűtést monoblockos hőszivattyús rendszer fogja ellátni, padlófűtéssel.


Műszaki tartalom:

-Csempe, járólap 6000 ft/m²
-Meleg burkolat 6000 Ft/m²
-Fürdőkád: 50.000.- Ft
-Beltéri ajtók 60.000.- Ft. /db
-Csaptelepek: 15.000.- Ft. /db

Magasabb árú választás is lehetséges a különbség finanszírozásával.

Elektromos kiépítés:
-Konnektorok szobákban: 3 db
-Konnektorok nappaliban 4db + internet és kábeltv kiállás
-Konnektorok konyhában: 6db
-Világítás helyiségenként 1-1 db
-Kábeltévé: Előkészítés


-Kapumozgató elektronika: előkészítés
-Riasztó: előkészítés


INGYENES hitel tanácsadás, CSOK Plusz ügyintézés!
BANKFÜGGETLEN hitelcentrumunk az összes elérhető bank és hitelintézet ajánlatát versenyezteti az Ön kedvéért, ráadásul DÍJMENTESEN.

- Egyedi, bankfiókban nem elérhető kamat- és díjkedvezmények
- Hitelképesség vizsgálat
- Idő, energia és pénz megtakarítás
- Teljes hivatali ügyintézés

Amennyiben hirdetésem felkeltette az érdeklődését vagy egyéb információra van szüksége hívjon bizalommal!

Családi ház részletei

Ár: 75 000 000 Ft
Méret: 76 négyzetméter
Azonosító: 11537759
Irodai azonosító: 382875
Cím: Szent Kereszt utca
Telek: 462 négyzetméter
Ingatlan állapota: Kitűnő
Jelleg: ikerház
Építőanyag: Tégla
Fűtés jellege: Geotermikus
Fűtés módja: Hőszivattyú
Komfort fokozat: Összkomfort
Kor: Új építésű
Szintek száma: Földszintes
Egész szobák: 4

Egyéb jellemzők

  • Csatorna
  • Garázs
  • Pince
  • Terasz

Térkép

Hasonló családi ház hirdetések

Eladó családi ház

Aszód

1988-1991 között épített családi ház. A falazás 30 cm-es tégla, rajta ...

Hasonló családi ház hirdetések

Eladó családi ház

Aszód

1988-1991 között épített családi ház. A falazás 30 cm-es tégla, rajta ...