Eladó családi ház Baja 29 000 000 Ft

Leírás

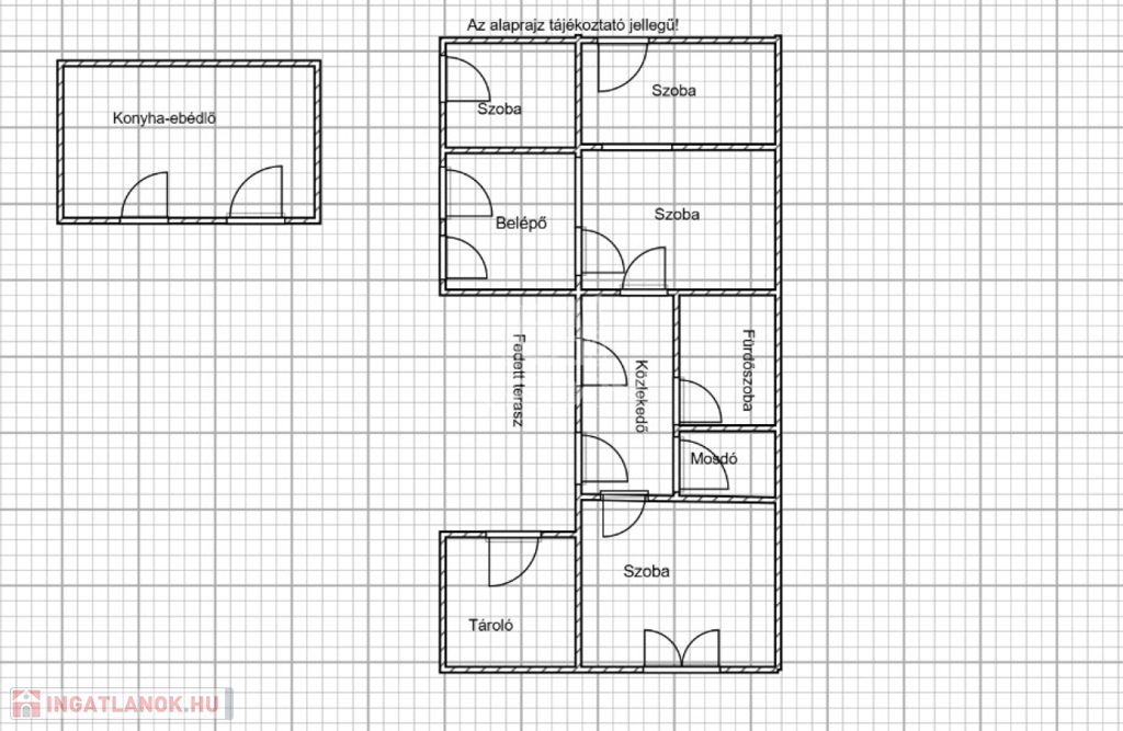
Eladó 90 nm-es családi ház Baján – Homokváros, Róka utca

Baja közkedvelt, nyugodt homokvárosi részén, a Róka utcában kínálunk megvételre egy vegyes falazatú családi házat, amely kiváló választás lehet fiatal pároknak, kisgyermekes családoknak vagy akár idősebb korosztálynak is.

✨ Az ingatlan jellemzői:
-2 külön nyíló szoba
-tágas nappali
-fürdőszoba + külön mosdó
-közlekedő
-különálló konyha

Nagy terasz – tökéletes helyszín reggeli kávézáshoz vagy esti beszélgetésekhez

Gépkocsi beálló

Kis, zárt udvar – könnyen karbantartható, mégis hangulatos

Elhelyezkedés:
Csendes, barátságos környék, mégis minden könnyen elérhető: bolt, óvoda, iskola és buszmegálló a közelben. A városközpont mindössze kb. 20 perc sétára található.

Ez az otthon ideális lehet azok számára, akik nyugodt környezetben szeretnének élni, de fontos számukra a jó elhelyezkedés is.

Irányár: 29.000.000 Ft

További információért és megtekintésért keressen bizalommal!

Családi ház részletei

Ár: 29 000 000 Ft
Méret: 90 négyzetméter
Azonosító: 11603318
Irodai azonosító: 392344
Cím: Baja kedvelt részén
Telek: 600 négyzetméter
Ingatlan állapota: Felújítandó
Jelleg: családi ház
Építőanyag: Kérdezzen rá a hirdetőtől »
Komfort fokozat: Fél komfort
Kor: 50 évesnél régebbi
Szintek száma: Földszintes
Egész szobák: 2
Fél szobák: 1

Egyéb jellemzők

  • Csatorna
  • Garázs
  • Pince
  • Terasz

Térkép

Hasonló családi ház hirdetések

Eladó családi ház

Baja, Alvég

Baján a Pásztor utcában, önálló, összkomfortos családi ház eladó. Az ...

Eladó családi ház

Baja

Baja frekventált, belvárosi részén kínálok eladásra egy könnyen megközelíthető, ...

Eladó családi ház

Baja

Csendes otthon Baján – most kedvező áron eladó! Szeretne egy nyugodt ...

Eladó családi ház

Baja

KIVÉTELES LEHETŐSÉG BAJA BELVÁROSÁBAN – EGYEDI INGATLAN BEFEKTETŐKNEK ...

Hasonló családi ház hirdetések

Eladó családi ház

Baja, Alvég

Baján a Pásztor utcában, önálló, összkomfortos családi ház eladó. Az ...

Eladó családi ház

Baja

Baja frekventált, belvárosi részén kínálok eladásra egy könnyen megközelíthető, ...

Eladó családi ház

Baja

Csendes otthon Baján – most kedvező áron eladó! Szeretne egy nyugodt ...

Eladó családi ház

Baja

KIVÉTELES LEHETŐSÉG BAJA BELVÁROSÁBAN – EGYEDI INGATLAN BEFEKTETŐKNEK ...